Page Park Architects completes a Renfrewshire activity and support facility for visually-impaired ex-service personnel
Designed by Page Park Architects, the Hawkhead Centre in Paisley, Renfrewshire, is an activity and support facility for Scottish War Blinded, a charitable organisation that provides free support to ex-service men and women who have lost their sight during or after military service. The project has been delivered in tandem with a new Royal Blind 54-room care home on the same site.
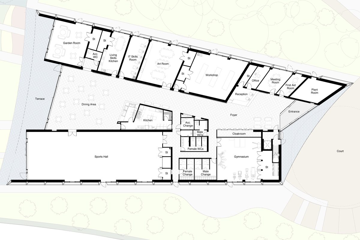
The 1530-square-metre building includes a sports hall, gymnasium, art room, kitchen and IT skills rooms, wood workshop, and large dining area forming the social hub and heart of the plan. Central to the project is the connection between the interior and an adjacent sensory garden that is encircled by mature trees and incorporates a pergola, potting shed and greenhouse.
Axonometric section
First-floor plan
Ground-floor plan
Drawing inspiration from its place name, the centre features a sweeping wing-shaped roof that is lined in timber and has five large, triangular-shaped rooflights set within it. The latter provide daylight and visual interest to the central dining and gathering area. All the key rooms share a visual connection to the roof and central space, engendering a sense of community and connection to the wider whole, says the architect.
A clear and easy to understand floor plan is designed to allow visually-impaired visitors to quickly build a mental map of the centre. Lighting is carefully controlled to minimise direct sunlight, which can be misconstrued as a step or change in surface. Natural materials provide the necessary visual contrast between different elements. For example, black enamel ironmongery on maple doors, with walnut door frames contrasting visually with white painted walls.
Additional Images
Credits
Architect
Page Park Architects
Structural engineer
Jacobs
Services engineer
Atelier Ten
Quantity surveyor
NBM
Landscape
Ian White Associates
Contractor
CCG



















