alma-nac’s transformation of a long-vacant high-street unit in Erith creates a flexible, low-carbon community hub, organised around a generous threshold space that links between street and interior.
London studio alma-nac has completed the refurbishment of a former commercial unit on Erith High Street in south-east London, transforming it into a multi-use community centre known as 68 Erith Hub. The 319 square metre project, commissioned by the London Borough of Bexley, repurposes a long-empty building to provide a welcoming ‘third space’ for local families, businesses and community groups. Tucked behind a set of distinctive orange metal gates, the centre is now managed by the Greenwich Cooperative Development Agency (GCDA).
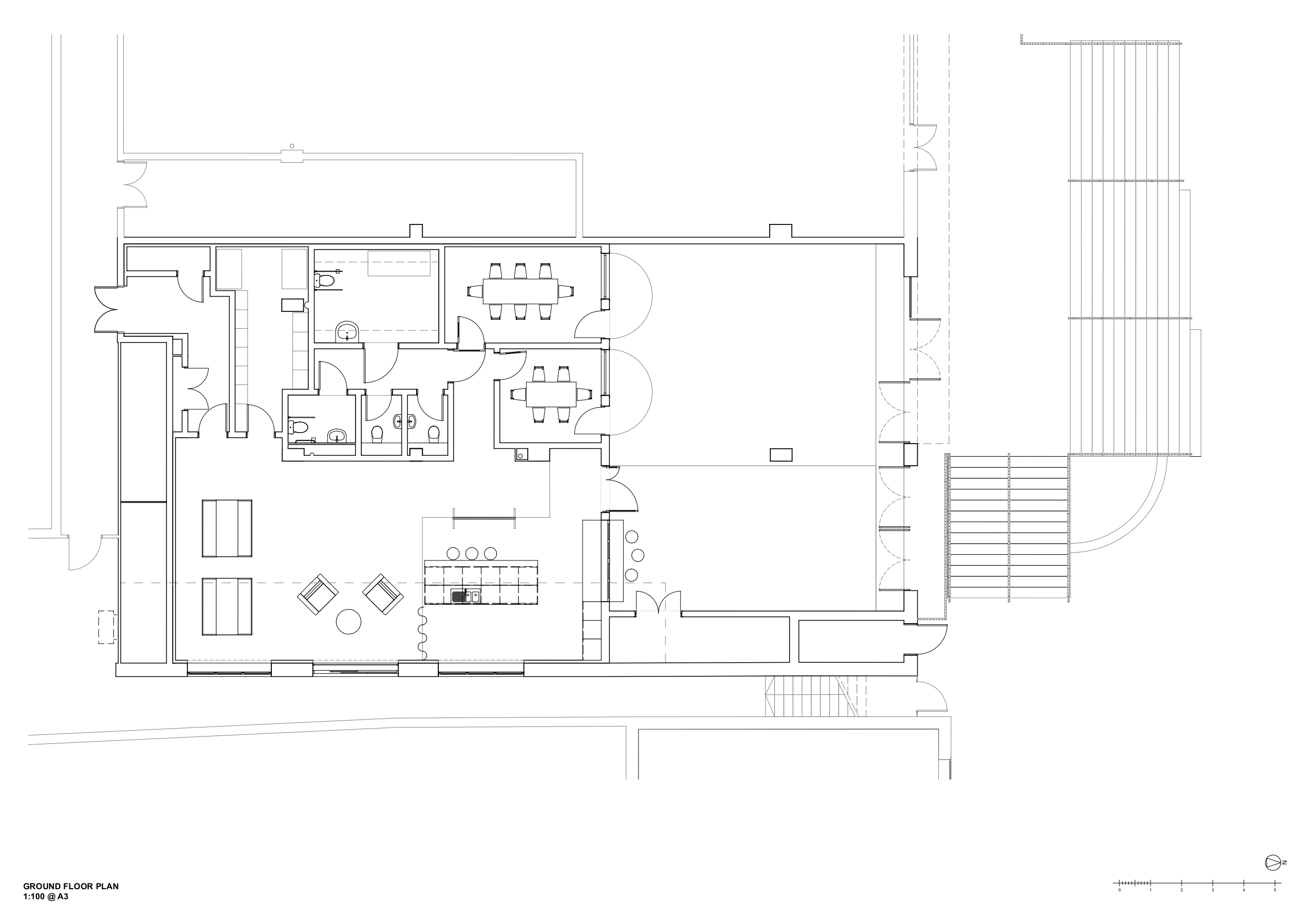
The project is organised around two primary spaces: the Square and the Living Room. Together, they explore different approaches to inclusivity and shared use, balancing a robust, public threshold with a more domestic interior. The new space as a result looks to support a wide range of neighbourhood activities, offering somewhere to gather that is neither home, work nor school.
Visitors enter from the high street through a set of bright orange gates and arrive in the Square, a semi-indoor space that sits somewhere between courtyard and public room. Sheltered within the building envelope yet open to air and daylight, the Square is conceived as an extension of the street, able to host organised activities such as classes, exhibitions and events, while also accommodating more informal, spontaneous use.
The Square also combines the free access of a public park with some of the comforts of an interior space, including shelter, charging points and a water fountain. Its character emerged from alma-nac’s early engagement workshops with local residents, including children, teenagers and adults. The design team also worked with the charity Make Space For Girls to better understand how public spaces might be shaped to support teenage girls in particular.
“Neither inside nor outside, this ‘third’ space becomes an extension of the street while providing a usable area for events,” said Caspar Rodgers, director, alma-nac. “The Square is a physical manifestation of the centre’s intention to both activate the high street and engage with the community, providing a safe space for all.”
Defined by its bold orange metal gates, the Square, when closed, they secure the building while remaining visually permeable; when open, they invite passers-by into the centre. Visually striking, the gates have become a defining feature of the project, marking its presence on the high street and signalling its civic role.
Beyond the Square lies the Living Room, a heated community space designed at a more domestic scale. Here, a kitchenette with generous worktops, light timber cupboards and bright colours supports a wide range of uses, from cooking sessions to catered events. Yellow curtains soften the space and can be drawn to subdivide the room, while a serving hatch with a bi-fold window strengthens the connection back to the Square.
Ground floor plan.
The Living Room also incorporates smaller bookable meeting rooms and toilet facilities, including a Changing Places toilet, providing a safe and dignified environment for people with profound or multiple disabilities. Furniture and lighting have been specified to reinforce the informal, welcoming atmosphere, allowing the space to function as a neighbourhood living room rather than a conventional civic hall.
As a first-use fit-out of an existing building, the project’s carbon demand is significantly lower than that of a new build. Even so, sustainable material choices were made: timber is used extensively, with timber-framed walls replacing conventional metal framing, and WC suites being salvaged from other projects rather than installed new.
Energy efficiency also helps to keep operating costs down. By avoiding fully conditioned interiors throughout and introducing the unheated yet sheltered Square, alma-nac was able to meet community needs while substantially reducing heating demand. Where heating is required, air-source heat pumps supply low-temperature heat via underfloor systems, while natural ventilation strategies reduce reliance on mechanical services.
After six months on site, 68 Erith Hub is fully open and in use, with GCDA exploring a wide range of programmes including after-school clubs, markets, art displays and playspaces. The project demonstrates how modest interventions, rooted in community engagement and careful material choices, can reinvigorate high-street buildings and create spaces that are both socially generous and environmentally restrained.
Credits
Client
London Borough of Bexley
Architect
alma-nac
Building contractor
Stonegrove Ltd
Structural engineer
Whitby Wood
Services engineer
EDP Environmental
Quantity surveyor
Stockdale
Building control
Stroma
Gates
WC Gates




















