A Kent house by ADP skilfully combines local arts and crafts design traditions with high levels of sustainability
Designed by ADP, the 430-square-metre house is located on a sensitive site close to the centre of Sevenoaks in Kent. Replacing a 1960s bungalow, the dwelling sits between two listed properties within a conservation area. The north, east and west facades are rendered in brick, while the south-facing garden elevation is highly glazed, maximising daylight and views out. The building is protected from the elements by a steeply-pitched natural slate roof.
Inspired by traditional Wealden houses, the internal layout is organised around a large central void with galleries at either end. The external expression – as visible from the street – is asymmetrical, reflecting the different internal functions, with expressive chimneys, corner windows capturing oblique views to the North Downs, and a dominant dormer window.
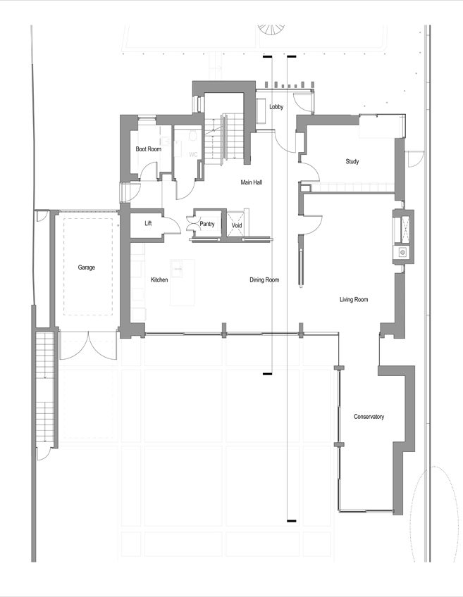
Lower ground, ground, first and second-floor plans; section
Brick patterning, slate corbels, ventilation details, metal signage and bespoke rainwater goods were produced in close collaboration with specialist subcontractors. They are intended to reflect the Arts and Crafts traditions of Sevenoaks – most notably the work of Ballie Scott.
Sustainability is central to the project. A fixed rooflight running from eaves to ridge allows sunlight to penetrate deep into the plan. Overhanging eaves, brise-soleil and translucent blinds avoid over-heating and glare in the summer. The central triple-height space allows warm air to rise and either be discharged through a ventilation chimney, or recycled at low level and warmed if necessary. The mechanical ventilation heat recovery system is divided into two zones located either side of the central void. Ground sourced heating – and cooling in the summer – is obtained from three boreholes and linked to an underfloor distribution system.
Further passive and active environmental technologies include high levels of insulation and airtightness, rainwater harvesting for garden irrigation, roof integrated photovoltaic panels, and an electric car charging point in the garage.



















