John Puttick Associates has completed a bold and ambitious youth hub in Grimsby, skilfully blending heritage retrofit with new-build construction.
Horizon Youth Zone in Grimsby, Lincolnshire, is an ambitious civic campus that transforms long-disused riverside warehouses into a contemporary youth facility. Designed by John Puttick Associates and developed in close collaboration with youth charity OnSide, the project combines restoration of historic fabric with modern additions to create a dynamic, inclusive space where young people can gather, explore and grow.
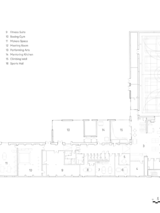
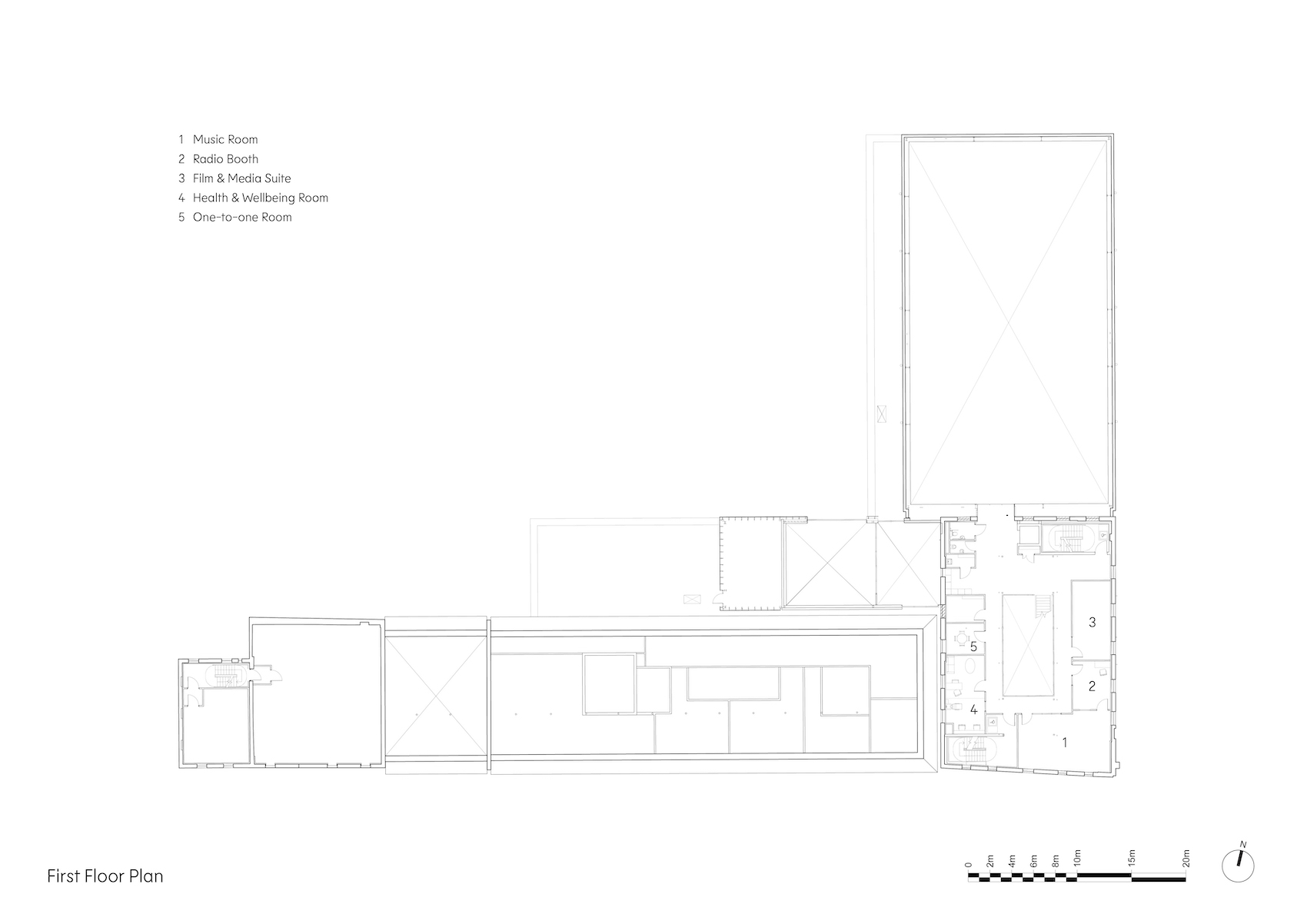
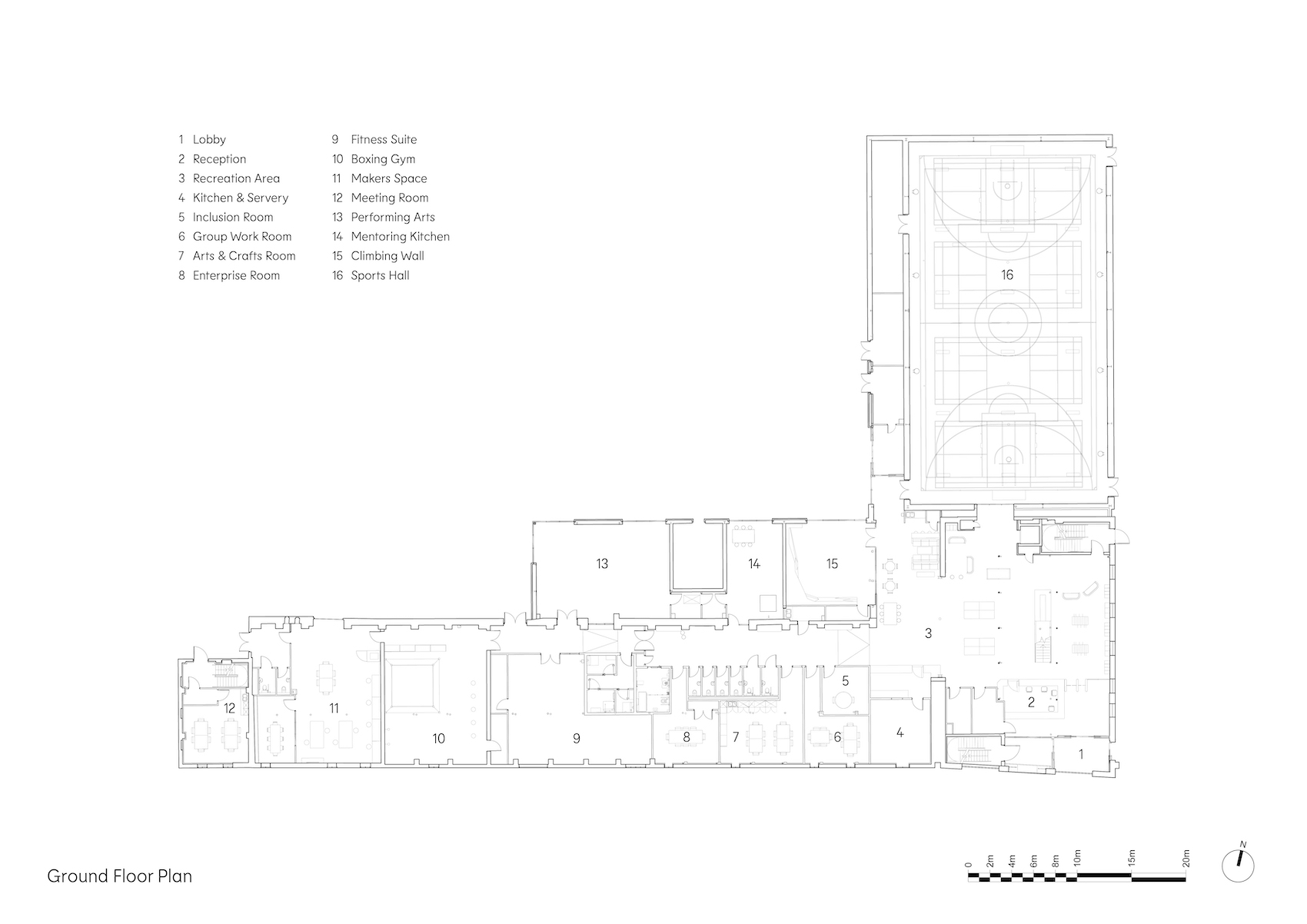
The site, adjacent to the River Freshney, comprises an L-shaped arrangement of refurbished and new buildings. Together, they provide a full suite of creative, social and sporting spaces, and reintroduce civic presence to a part of the town long marked by industrial decline. Horizon forms a key part of Grimsby’s wider masterplan for regeneration and represents a hopeful, youth-led future for the town centre.
The practice’s relationship with OnSide began in 2015 with a competition-winning youth facility in Preston, located opposite the award-winning refurbished Bus Station. That collaboration led to the Grimsby commission in 2018, which focused on reviving a series of dilapidated listed warehouses to serve the region’s younger population.
Dating back to 1821, the Grade II-listed riverside buildings have a layered history. Initially used as granaries and maltings, they later housed a sawmill, billiards hall, cake and seed store, and a box factory, before closing in the 1990s. The existing buildings have been carefully repaired and repurposed, while a new 1,115-square-metre extension introduces a sports hall, climbing wall and performance spaces. Arranged in an L-shape, the two wings embrace an outdoor area with football pitch, skate zone, and planting beds.
Visitors arrive via a pedestrian bridge into a generous, triple-height foyer, which flows into the café and recreation spaces. This central hub leads to activity rooms for arts, crafts, enterprise and wellbeing. Circulation has been designed to negotiate the constraints of the original fabric while ensuring clear, intuitive access throughout. The scheme includes a sensory inclusion room and a hygiene suite for young people with complex needs.
The new wing is clad in zinc and dark grey brick, and includes a sawtooth roof that references the site’s industrial past while drawing diffused north light into the sports hall. Photovoltaic panels and wind catchers support natural ventilation and renewable energy. The climbing wall is housed in a striking metal-mesh tower, and a single-storey volume accommodates the performance studio.
Original warehouse elements have been retained and celebrated: arched openings, window patterns and timber roof trusses remain visible throughout, and bricks salvaged from unsafe areas of the site have been used to rebuild the riverside wall. The masonry façade and footbridge have been fully restored, reinforcing the historic character of the townscape. A fabric-first approach and material reuse strategy has delivered a 54 per cent energy efficiency improvement over a benchmark building.
John Puttick, Director at John Puttick Associates, said: “It has been a long and fascinating journey through design and construction, and transforming these historic warehouses into a youth hub has been incredibly rewarding. It’s very exciting to see the revival of a key part of Grimsby’s townscape contributing towards renewal of the town centre and the life of the community for the future.”
Charlotte Ireson, Associate at John Puttick Associates, commented: ‘Horizon Youth Zone allowed us to balance heritage conservation with modern facilities. From the triple-height social space to the outdoor kick pitch, it’s wonderful to see young people interacting with the building and enjoying it fully. By blending historic architecture with bold contemporary design, we aim to create a vibrant destination where young people feel a genuine sense of ownership and connection.’
Credits
Client and Main contractor
Horizon Youth Zone
Architect
John Puttick Associates
Conservation Architect
Seven Architecture
Structural engineers
Ramboll, Craddys
Services engineer
TACE
QS, project manager
Walker Sime
Main contractor
Hobson & Porter

































