HW STUDIO’s Kehai House in Morelia, Mexico, places a Japanese-inspired garden at the heart of a compact plan, and uses spatial clarity and controlled light to shape a contemplative interior.
HW STUDIO, led by Rogelio Vallejo Bores, has completed Kehai House in Morelia, Mexico, a 95-square-metre private residence that reinterprets domestic space through the concept of the void. Conceived as the architect’s own house, the project departs from conventional spatial hierarchies, placing an empty central garden at its core and organising all living spaces around this contemplative interior landscape.
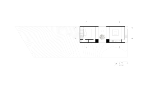
Set within a dense urban context, the house presents a deliberately restrained exterior. From the street, it reads as a closed, monolithic volume, its compact form offering little indication of the carefully calibrated spaces within. The plan is structured around a central stone garden, conceived as the organising element of the house rather than a decorative feature. Drawing on precedents from Japanese temple architecture, the garden is composed of gravel, stone and two raised timber platforms. This void becomes the reference point for all adjacent rooms, which orbit it in a series of interconnected yet distinct zones.
The spatial arrangement is divided into two principal wings. On one side, a double-height kitchen and dining area forms the social heart of the house, with an upper volume designed to collect and vent smoke from an open fire. Opposite, the living space is conceived as a quieter, more introspective environment, where large stones are positioned within the interior as sculptural elements. The two zones are not directly connected by an internal corridor, requiring movement across an external threshold and reinforcing a direct relationship with climate and time.
Circulation is orchestrated as a gradual descent into the house. Entry is from street level via a staircase that leads down into the interior, a move that both responds to the site’s ground conditions and establishes a deliberate shift in spatial perception. This downward movement culminates in the central garden, from which the rest of the house is accessed.
The material palette is deliberately pared back, with minimal glazing and carefully controlled openings. Only three windows puncture the external walls, each precisely positioned to frame specific views: a distant mountain, a neighbouring tree, and the central garden itself. Internally, traditional elements such as shōji screens filter light and soften transitions between spaces, allowing daylight to enter indirectly and change in intensity throughout the day.
The upper level contains a single bedroom, conceived as an intimate and minimal retreat. A circular window provides a focused view of a tree planted in the garden below, reinforcing the visual and spatial connection between levels.
The project’s modest budget meant that key spatial qualities were prioritised over formal gestures, using simple construction techniques and careful planning to achieve both efficiency and clarity. The absence of unnecessary circulation space and the concentration of programme around the central void contribute to the building’s compact footprint.























