Lawrence and Long Architects reimagine traditional approaches to constrained mew sites by carving an internal courtyard from a square, timber structure, creating a house nested around a garden: carefully balancing privacy and openness in a tight urban setting.
Dublin-based practice, Lawrence and Long Architects, has completed O House: a timber structured mews house in Rathmines, Dublin 6. Set within a quiet cul-de-sac adjacent to a local tennis club, the site prompted a novel take on constrained, mews housing, combining practical privacy with optimum natural light and ventilation in all rooms.
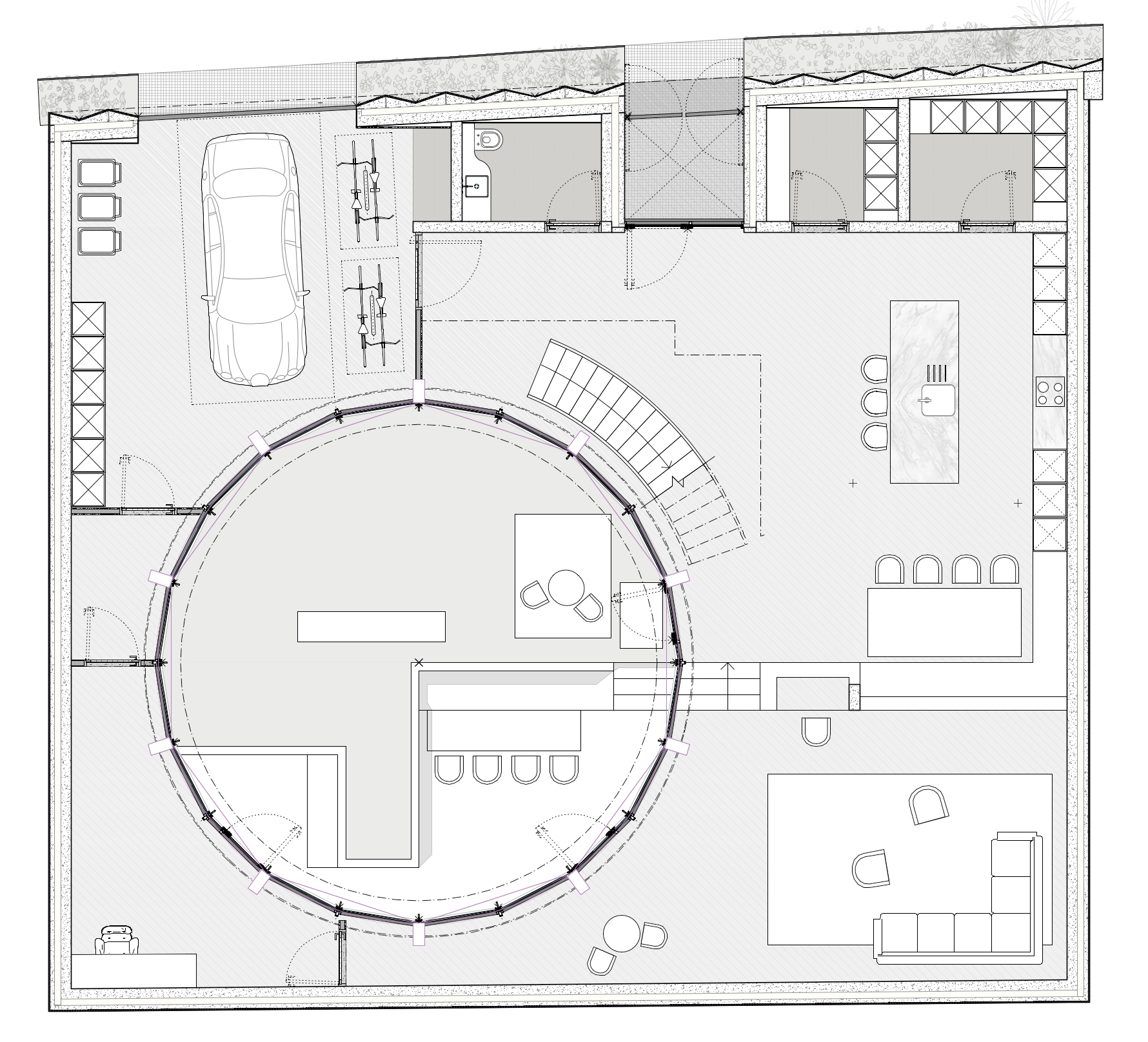
The project takes its name from its plan: a square footprint arranged around an off-centre, circular courtyard. For Lawrence + Long, the interest was in bringing the garden – traditionally sitting to the rear of a property – into every room. The garden rises up through both floors, and in combination with the exposed timber interiors, creates a dialogue between inside and out. The hollow cylinder cutting through a timber frame appears like a trunk around which the house nests.
A concertina façade of slim white bricks and corten steel wraps around the eastern elevation where the sloped roof is at its highest. Ceiling height drops down to single storey in the south-western corner. The roof and triangular gables are finished in a zinc cladding with vertical standing seams, mimicking the timber structure beneath.
A pre-fabricated CLT structure is set into concrete foundations, with timber roof and floor panels added on site. The circular courtyard is defined by 20 glulam columns, which support the upper level while framing continuous floor-to-ceiling glazing allowing natural light and ventilation to filter into all rooms in the house.
A thoughtful and playful design has resulted in a constant interaction between inhabitant and the garden: it is a central axis around which daily life revolves.
Credits
Client
JMH
Architect
Lawrence and Long
Timber structure sub-contractor
Glenfort Timber Engineering
Civil and structural engineers
OBA Consulting Engineers











