Haworth Tompkins’ comprehensive renewal of a Grade II-listed theatre in North Wales reimagines a 1970s arts complex as an open, accessible and low-carbon cultural hub rooted in its rural setting.
Haworth Tompkins has completed a major redevelopment of Theatr Clwyd, a Grade II-listed theatre and cultural centre overlooking the town of Mold in North Wales. Originally opened in 1976 as the Clwyd Theatre and Educational Technology Centre, the building was conceived as a multi-purpose regional arts venue, combining performance spaces with studios, galleries and community facilities. Nearly fifty years on, the practice’s intervention reframes the sprawling 10,000 square metre complex as a more coherent, accessible and technically capable civic destination, while retaining the character of the original structure.
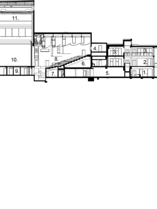
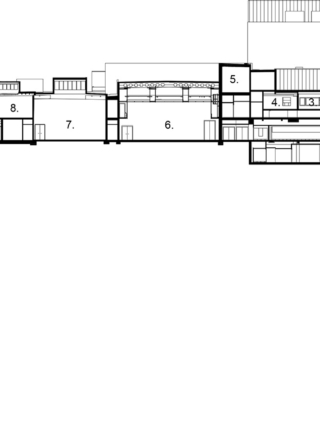
Set into a hillside with expansive views across the Clwydian landscape, the building has always held a strong relationship with its surroundings. Haworth Tompkins’ redesign looks to strengthen this connection through the addition of a new three-storey glazed foyer on the south-west elevation. Organised around a central atrium, the extension forms a clear and welcoming entrance, replacing previously fragmented points of access. Inside, a sequence of light-filled public spaces incorporates a café, restaurant and informal working areas, conceived as a covered public square that extends the building’s use beyond performance times.
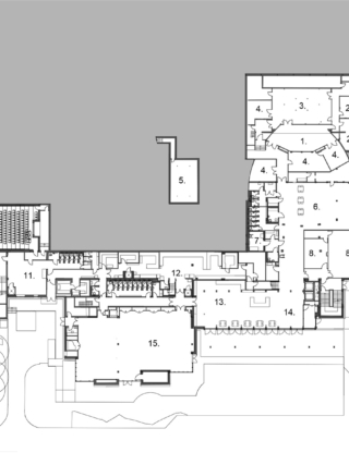
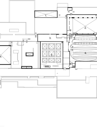
Above: Site plan.
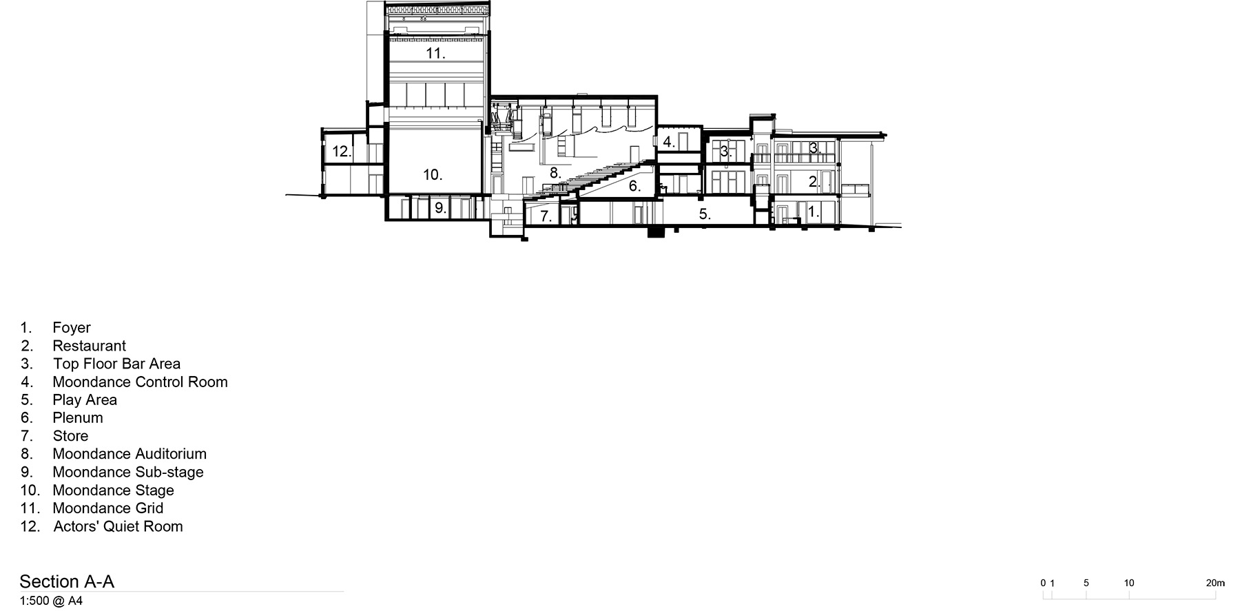
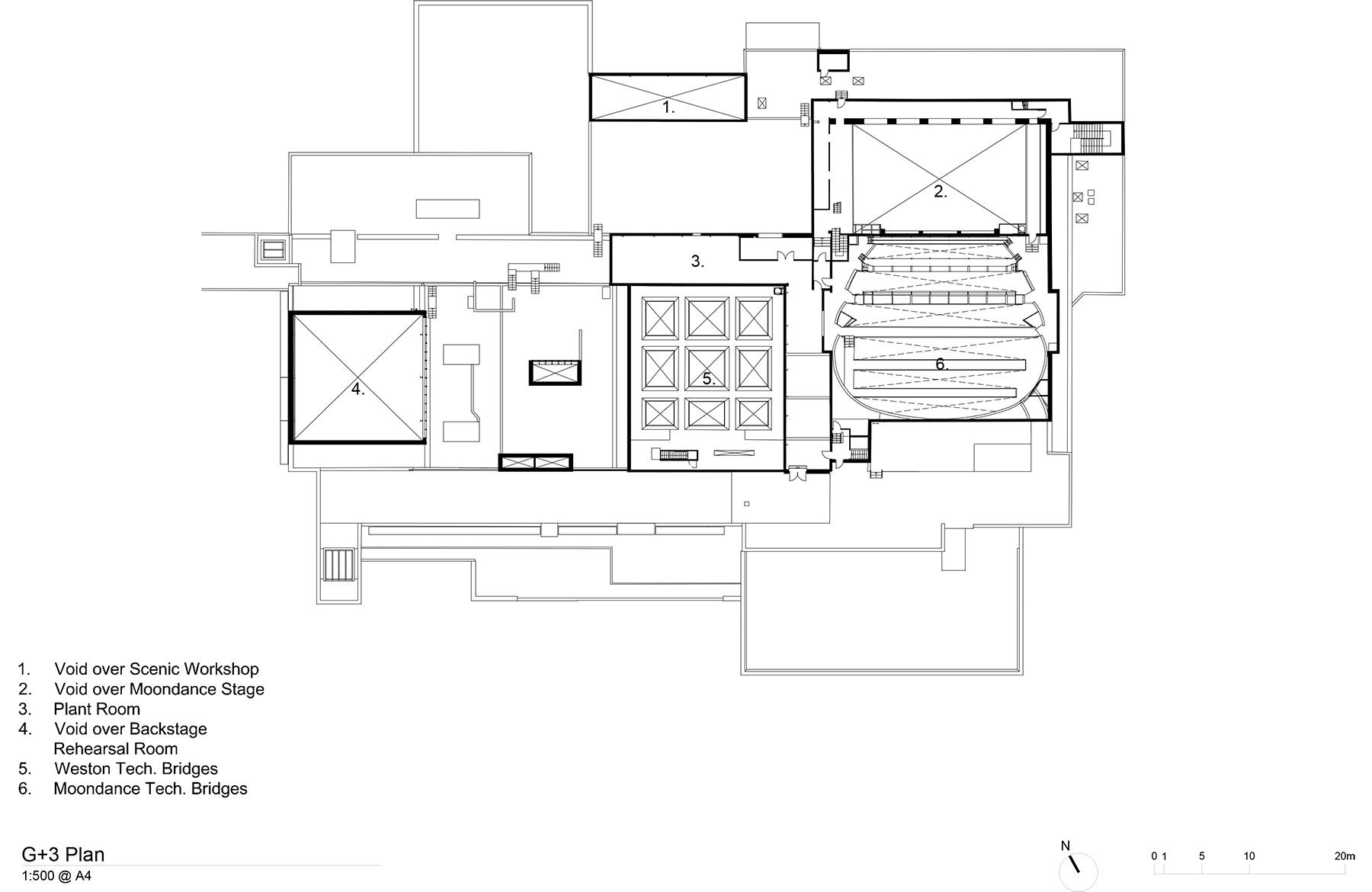
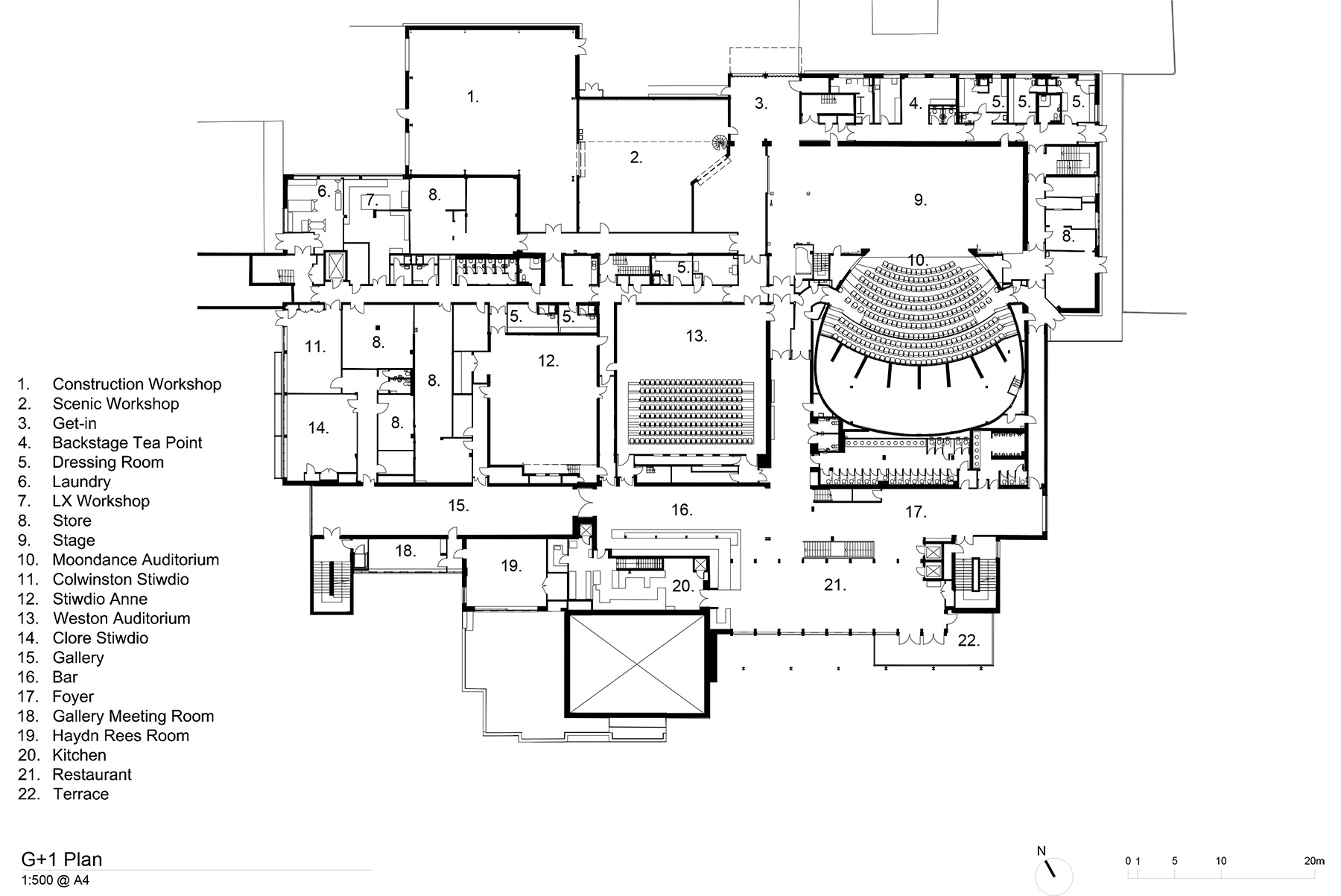
Below: Ground floor through to fifth floor plans as well as section drawings.
The project addresses the limitations of the original plan, where circulation routes had become convoluted and restrictive. A new internal ‘street’ now runs through the building, linking auditoria, gallery spaces and public amenities in a more legible arrangement. Alongside its three performance venues, cinema and event spaces, the theatre now accommodates rehearsal rooms, studios, workshops and dedicated areas for community use. Back-of-house facilities have been significantly improved, supporting a more integrated approach to theatre-making, including a new scenic workshop that allows production teams to work together on site for the first time.
A key aspect of the work carried out is an emphasis on improved access and inclusivity. Step-free routes have been introduced across all levels, supported by new lifts and enhanced auditorium layouts that provide additional wheelchair seating. A Changing Places facility, sensory gardens and play areas extend the building’s role as a civic resource, broadening its appeal to audiences of different ages and abilities.
Rather than pursuing wholesale replacement, the scheme adopts a deep retrofit strategy, retaining much of the existing concrete frame and envelope. This approach minimises embodied carbon while enabling significant upgrades to environmental performance. Improvements to the building fabric are combined with passive design measures, upgraded services and the replacement of gas boilers with air source heat pumps. On-site photovoltaics and a renewable energy tariff further contribute to operational decarbonisation.
The redevelopment has been shaped by extensive consultation, with more than 22,000 responses informing priorities around accessibility, sustainability and community use. Delivered through a phased construction programme, the works allowed the theatre to remain operational throughout, maintaining its role as a cultural anchor for the region.
“Theatr Clwyd has an extraordinary history as Wales’ largest producing theatre. Our ambition was to retain the spirit and character of the original 1970s Grade II listed building, while opening the building up to its spectacular rural landscape setting and to the community it serves,” said Lucy Picardo, director at Haworth Tompkins.
“Working closely with the theatre team, we have reimagined the building as a welcoming civic destination – a place where making, learning and communal gathering sit alongside performance. The project has prioritised deep retrofit and careful reuse of the existing structure with minimal extensions, reducing embodied and operational carbon while introducing new spaces that are light filled, accessible and convivial. It has been a privilege to collaborate so closely with Theatr Clwyd on a project that balances conservation, joy, inclusivity and sustainability. The result is a renewed theatre that celebrates its past while creating a technically capable and inspiring setting for theatre-making long into the future.”
Completed in October 2025, the project coincides with the theatre’s fiftieth anniversary, marking a new phase in its evolution.
“Theatr Clwyd has always been much more than a theatre – it is a creative home for artists and a vital cultural hub for communities across North Wales,” added Liam Evans-Ford, executive director and CEO at Theatr Clwyd.
“This transformation has been an extraordinary collaboration with Haworth Tompkins, whose deep understanding of theatre-making and generosity of approach has shaped every aspect of the project. Together we have renewed the theatre to be more welcoming, accessible and inspiring than ever before – a place where artists can create ambitious work, where communities can gather and feel a sense of belonging, and where audiences can experience world-class theatre in the heart of North Wales.”
Credits
Client
Theatr Clwyd & Flintshire County Council
Architect
Haworth Tompkins
Structural engineer
Betts Associates
Services engineer
Skelly & Couch
Theatre and acoustic consultant
Charcoalblue
Project manager
Plann
Main contractor
Gilbert Ash
Access consultant
HADA
Fire consultant
OFR
Design consultancy
Studio Three Sixty
Landscape design
Studio Bristow
Wayfinding consultant
Studio Mothership
BREEAM assessor
WYG / Tetra Tech
Catering consultant
Keith Winton Design
Restaurant design
Rosendale Design
Art commissions
Frances Priest; Manon Awst; Sauda Imam; Jude Rogers, Catrin James and Studio Mothership; Huw Davies







































