Three years on from the completion of the Tropical Fruit Warehouse on Dublin’s quayside, lead architect Eoin Flanagan reflects on the project’s success – from an ambitious architectural vision to the specialised team at Schüco that made it possible.
Rising from Dublin’s quayside, just south of the Beckett Bridge on Dublin Quays, sits the Tropical Fruit Warehouse: a former warehouse and prominent example of adaptive reuse by Dublin-based architecture practice, Henry J Lyons. Completed three years ago, the project demonstrates how architectural intervention, in collaboration with high-performance façade technology from Schüco, can transform industrial heritage into a contemporary workplace without losing a rich, historic identity.
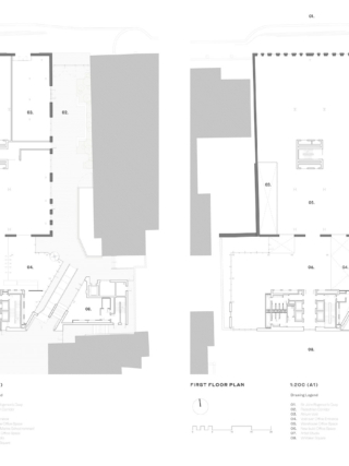
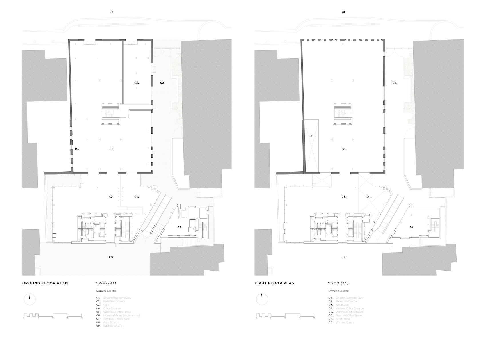
Its success lies in a carefully considered three-part composition: a restored 19th century warehouse, a lightweight cantilevered extension hovering above, and a new seven-storey office building to the rear of the site. Behind the restored red brick, double gabled façade, are the original Scots Pine trusses, which have been restored and deliberately highlighted as features framing the open plan space beneath.
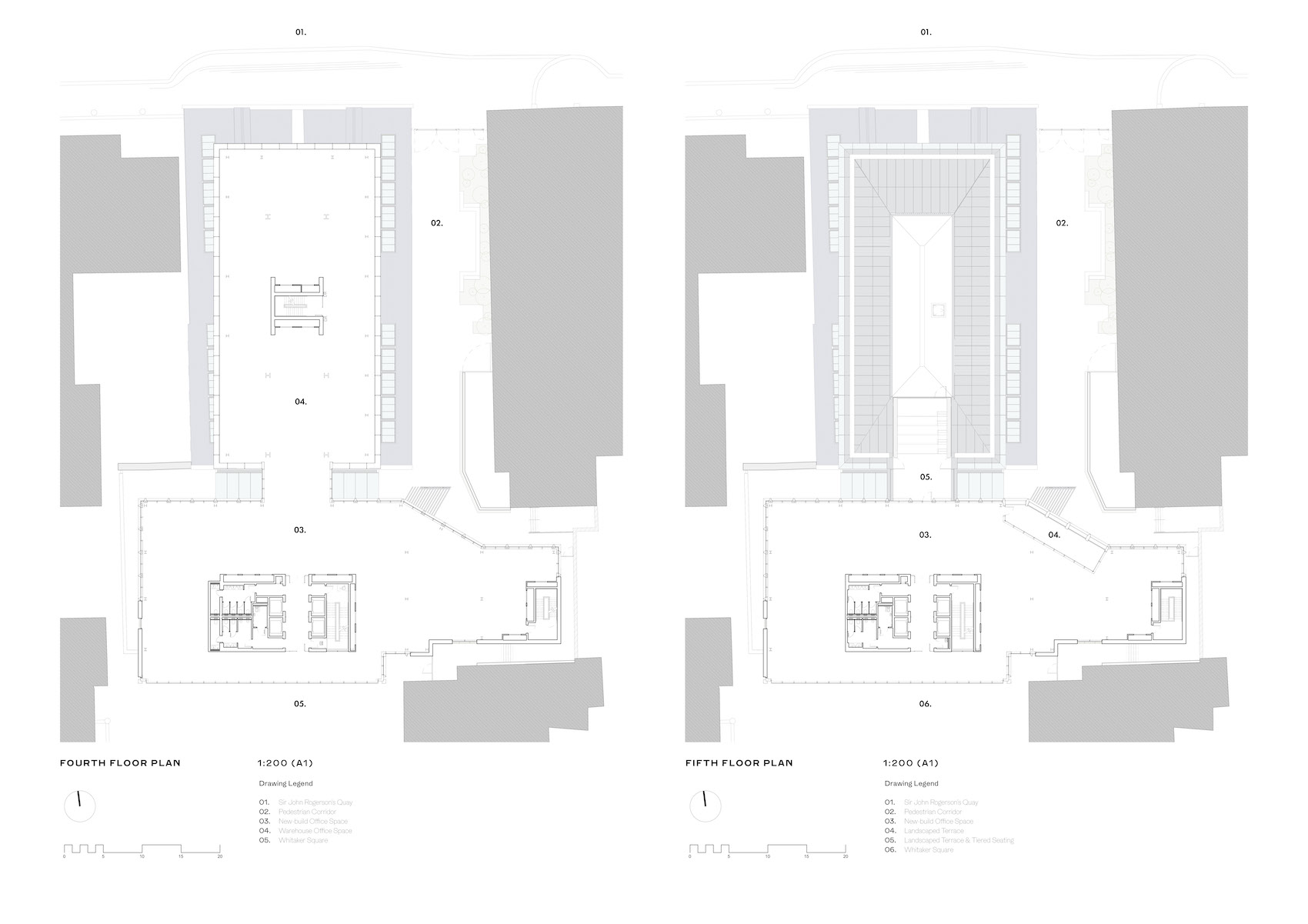
The box that floats above the robust warehouse has become the project’s signature feature, and was the architects’ way of ‘breathing new life’ into the scheme; re-establishing its position on the south bank of the Liffey. The glass extension is cantilevered from the third and fourth storeys of the new office block behind, connecting all three buildings through shared circulation routes. This creates an entirely accessible scheme, whilst also protecting the warehouse from unnecessary interventions to the truss and roof.
Environmental performance has been of equal consideration to the team. Achieving LEED Platinum and BER A3, the all-electric development combines low-carbon systems with a high-performance twin-skin façade, delivering comfort alongside panoramic glazing. The reuse of the existing fabric, combined with smart shading and natural ventilation strategies, underpins the project’s strong sustainability credentials.
Several years on, the Tropical Fruit Warehouse stands as a persuasive model for how heritage and technology can be productively aligned. Enda McGrath, Architectural Project Manager for Schüco in Ireland, said:“The Tropical Fruit Warehouse was a pleasure to work on and collaborate with the design team and our partner, Alucraft. With help from Shane Hall at Alucraft, we at Schüco complied a comprehensive design concept, that included our FWS 50 curtain wall stick build plant on system, incorporating the architecturally designed glass fins. The building is a stunning piece of architecture, located on the Dublin Quays, that provides a modern light filled office, giving employees a very nice space to work in.”. To which Shane Hall, Technical Director at the specialist contractors, Alucraft, added: “There were many challenges to the Tropical Fruit Warehouse – as with every Grade A high spec office development in Dublin – and early engagement and collaboration on the façade types with Schüco was paramount. The project was comprised of various Schüco systems around the entrance and reception area, and the same specification in the roof light making this area extremely light weight and airy between the somewhat shaded area of the link between the old warehouse and the new office. However, the unitised was the most challenging due to the jumbo size of 3.0m x 5.0m supporting large extruded feature fins and glass within its chassis. Alucraft collaborated with Schüco in developing an existing UCC system innovated to cope with the structural gymnastics the design presented which was taken forward into other jumbo sized unitised projects.”

AT spoke with Eoin Flanagan, Director at Henry J Lyons and project lead on Tropical Fruit Warehouse.
What was the biggest challenge when approaching this project?
The site included a prominent Protected Structure warehouse building fronting onto the quay. The historic warehouse had fallen into disrepair with much of the fabric needing complete restoration. There was no obvious solution to bring the building back to life with a new use. The floorplates were small and internal space was heavily congested with subdividing walls – creating a cluster of incoherent and poorly lit accommodation. From a commercial aspect, the restoration was financially unviable without the ability to increase the quantum of lettable floorspace. Whilst the City Development Plan allowed for a new commercial building on the narrow strip of land to the south of the warehouse, integrating this with the adjacent Protected Structure presented a seemingly insurmountable challenge.
From an urban ‘placemaking’ perspective, the site was contributing little to it’s landmark context. Only the north façade of the warehouse was public facing, with the remaining elevations having no engagement with the city or surrounding spaces. The curtilage of the building was on private lands, with pedestrian access restricted by iron gates and a manned security hut. Even if access were permitted, there was nowhere to go as no through-route existed to the public square to the south.
Henry J Lyons’ response to the dilemma was a simple idea, but one that needed support from the local authority, commitment from the client, and meticulous on-site execution.
If you were starting the project today, what would you do differently? Is there anything you know now that you wish you knew then?
At the strip-out phase of construction a highly significant portion of further historical fabric was uncovered, prompting a rethink in design. The eastern wing of the former Hibernian Marine School, built on adjacent lands in 1773, was discovered largely in-tact, forming the south-west corner of the warehouse external wall and with original window openings having been infilled with poured concrete. The design team’s response was to incorporate the historical remnant as a key feature of the restored building, and to celebrate it by re-modeling the building’s entrance area with a shared glass link connection. The design change required an amendment planning application and subsequent impact on construction costs and programme, however the overall benefit to the integrity of the development was deemed the overriding factor in the client team’s decision making.
Interconnecting the buildings brought about an added benefit as circulation cores and building services could now be shared. The primary circulation core is located within the new building resulting in less disruption to the warehouse roof and truss arrangement. A larger portion of the warehouse floor plate is consequently freed-up as open plan office wrapped around a small centralised escape stair.
Are there aspects of the building you’re particularly proud of now that it’s in use?
The restoration of the building required careful execution by specialist conservators of historic fabric. Restoration of the masonry walls was carried out on site, with all salvaged stone reused and additional salvaged brick sourced from two separate salvage yards in Dublin used for the replacement of irreparable sections of masonry.
For new-build elements, the team undertook an intricate process of sampling various blends of tumbled new brick in order to define the most appropriate specification. The original timber trusses were restored off-site in a facility 120 miles from Dublin, requiring carefully managed removal and transportation. Decayed timbers no longer structurally suitable as posts, were modified and re-used as lintels over arched doorways in the external walls.
In realising the vision of a ‘floating’ glass cuboid, a complex structural solution was required to achieve the appearance of an unsupported overhead extension. The solution developed is a steel lattice framework cantilevered from a small concrete central core to support the floor and facade loadings. The supporting steelwork is hidden behind a decorative aluminium soTit emblazoned with a tessellated diamond pattern inspired by the saw-tooth profile of the warehouse’s northern gable.
The ‘floating’ perception is further enhanced by the two-storey high ultra clear glass facade which fully envelopes the new floors above the warehouse building. The twin-wall is a specialist designed element with an integral naturally ventilated cavity to passively control the internal environment by mitigating solar overheating. Access to the cavity, required for cleaning the glass, is provided by integrated abseil anchor points at roof level that allows personnel to safely traverse the narrow twin-wall void space without the need for temporary scaffolding.
How did this project influence future projects?
The realisation of the Tropical Fruit Warehouse is a testament to persevering with a simple architectural concept, despite all roadblocks which lie ahead, and executing the detail with integrity and respectfulness towards the work of master craftsmen who have gone before.
How would you describe the building’s presence in its wider urban context?
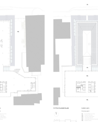
From an urban ‘place-making’ perspective, the redevelopment of the site has provided a significant planning gain, reshaping the stretch of lands running from Sir John Rogerson’s Quay through to Whitaker Square on the south of the development, and transforming the city block into an urban destination.
The works include a new hard surfaced ‘pedestrian corridor’, planting and street furniture for public amenity and enjoyment, active frontage and a mix of building uses. A specially commissioned artwork has been incorporated into a gated entrance to the public realm space which marks the arrival to the re-imagined urban destination. Re-modelling of the site includes the re-grading of ground levels and gradient to provide a uniform level across the site from the entry point at Sir John Rogerson’s Quay and to provide an improved interface with the warehouse building by providing level access entry points along the east and south facades.
The restoration of the Protected Structure has activated the building’s facades, allowing full engagement with the newly landscaped public realm spaces. Passers-by can now fully appreciate the internal character of the beautifully restored historic fabric as they transition through the now fully permeable city block.
The cafe space and artist’s studio provide an added enrichment to the local amenity. The building’s primary function as a workplace has attracted a high-calibre international tenant, with a young workforce that will undoubtedly contribute to the vibrancy and diversity of the surrounding area.
Did collaboration with specialist contractor influence the design, and if so, how?
At procurement stage, regular workshops with Alucraft were essential for the development of façade solutions to deliver the architectural design intent. Alucraft were influential in the process of collaboratively reaching feasible solutions.
Do you feel the project has contributed to a broader conversation about reuse, heritage, or mixed-use development in Dublin?
Yes, the project has paved the way for future approaches to dilapidated historical buildings which, without intervention and investment may be lost indefinitely from our urban landscape.
How did the building’s industrial heritage in combination with a contemporary urban context shape design decisions?
The design team engaged in early collaboration with the Historic Building Consultant, Robin Mandal, to define the scope of the restoration and interventions to the Protected Structure and ensure that conservation best practice was rigidly adhered to. Design inspiration for the building was drawn from local and international reference typologies of similarly adapted historical buildings, taking account of lessons learned and pushing the boundaries of what was technically possible. The two-storey cantilevered extension, whilst a bold move, was considered the appropriate means of sensitively ‘breathing new life’ into the dilapidated warehouse and realising IPUT’s vision to mark the site’s landmark location.
In-line with conservation best practice, the warehouse overhead extension required a structural design which respected the traditional pitched roof fabric of the Protected Structure below. The design response is a steel lattice frame cantilevered from a small central core which minimises the footprint impact of the new extension on the historic building underneath. Formed openings in the concrete walls of the core allow the original trusses to be threaded through into their original positions. Many of the trusses have undergone structural repairs to rectify water damaged timbers which had decayed over years of neglect. In conjunction with the conservation subcontractor, a specialist timber resin splice was designed to replace the damaged truss end with suitably sourced Scots Pine. To maintain the original aesthetic of the trusses, concealed steel rods were dowelled into the chord ends to splice the new timber with the old, without any visible fixings.
Given the richness of the signature elements of the building, a leaner approach was adopted in the design and procurement of the new-build elements. A materials palette of glass and aluminium, combined with elegant detailing and proportions have created an overall harmonious facade composition which compliments the more traditional construction fabric of the connected warehouse building. The design of feature facade elements have drawn inspiration from the historical features of the Protected Structure and have been subtly woven into the detail of key public facing areas of building envelope.
Internally, exposed pre-cast concrete and painted steel are the predominant materials used in a simple palette of finishes and minimalist detailing. This selection of finishes expresses a defined distinction between the new and the old, with the modern construction appearing as subservient but complementary to the grain of the traditional restored fabric.
Credits
Client/ Owner and Developer
IPUT Real Estate
Architects
Henry J Lyons
Specialist Contractor
Shane Hall, Alucraft
Main Contractor
PJ Hegarty
Conservation Consultant
Robin Mandal and David Slattery Conservation Architects
Historic Fabric Recording
Bill Hastings (ARC)
Quantity Surveyors
Kerrigan Sheanon Newman
Civil/Structural
Torque Consulting Eng
Mech/Electrical
O’Connor Sutton Cronin
Landscape Architects
Townshend Landscape Architects
Assigned Certifier
i3PT
Fire and DAC
Michael Slattery Associates
Facade Consultant
ARUP













