Goldstein Heather has skilfully reworked a narrow, end-of-terrace Victorian house in Stamford Brook, creating a light-filled, interconnected family home, designed to support multigenerational living.
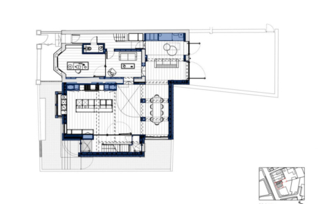
Goldstein Heather has completed West London House in Stamford Brook, London, reconfiguring and extending a Victorian end-of-terrace property through a substantial four-storey lateral addition. Occupying the site of a former Territorial Army building, the project transforms a previously narrow and fragmented home into a generous, light-filled residence designed to support multigenerational living.
The original house was defined by a tight floorplate and a disjointed internal arrangement that limited both daylight and social interaction. Rooms were isolated, and the dining space sat deep within the plan with little connection to the garden. The unexpected availability of the neighbouring site presented an opportunity for the clients and their architect to fundamentally rethink the house, expanding its footprint and reorganising its spatial logic.
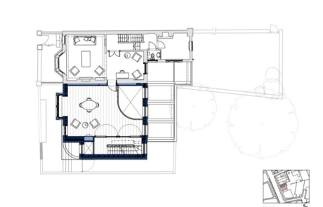
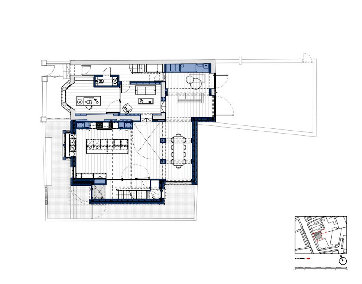
Goldstein Heather approached the project with a focus on continuity, light and long-term adaptability. Benefiting from an east–west orientation and views towards a green square, the extension is structured around a double-height volume that draws daylight deep into the plan. This vertical space forms the social heart of the house, visually linking the kitchen and dining areas at ground level with a lounge above. Openings, skylights and carefully framed views establish a series of connections between interior spaces and the surrounding landscape.
The architectural language of the extension is defined by a series of sculpted forms and expressive geometries. Curved arches are used throughout, shaping light and reinforcing a sense of permanence, while brickwork is handled with a clarity and precision that distinguishes the new addition from the original fabric without competing with it.
Together, the existing house and extension provide approximately 500 square metres of accommodation, with the new 244-square-metre addition operating almost as a second dwelling while remaining fully integrated across all levels. On the ground floor, an expansive kitchen, dining and living space opens onto the garden, forming the primary gathering area for the family. The kitchen, developed in collaboration with Sebastian Cox, combines a long marble island with green veining, bespoke ash joinery and textured cabinetry that echoes the articulation of the upper storeys.
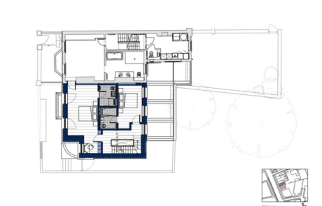
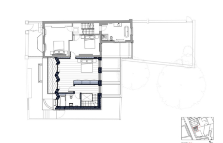
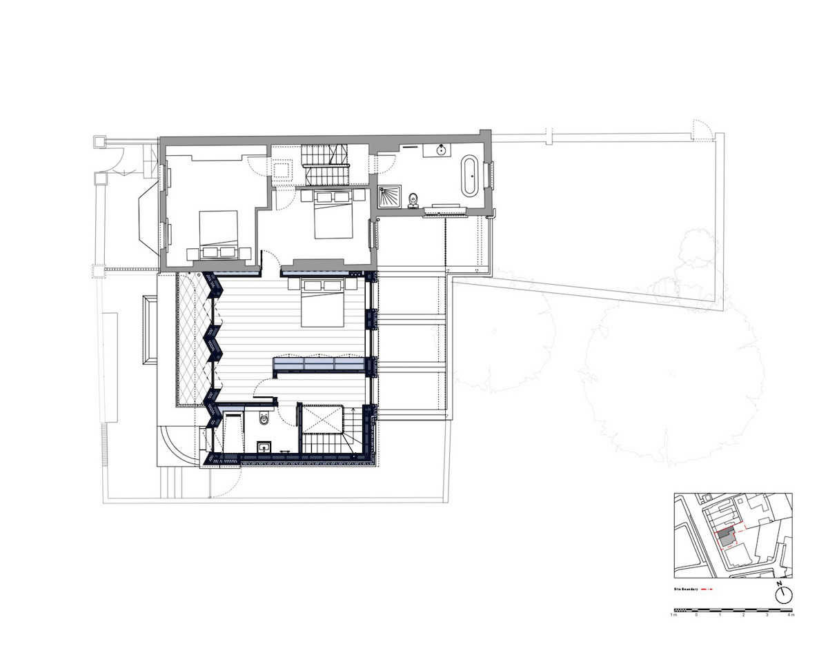
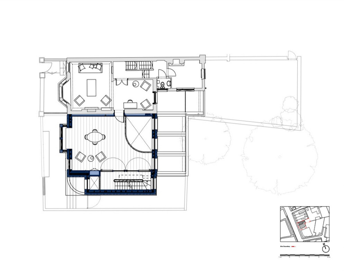
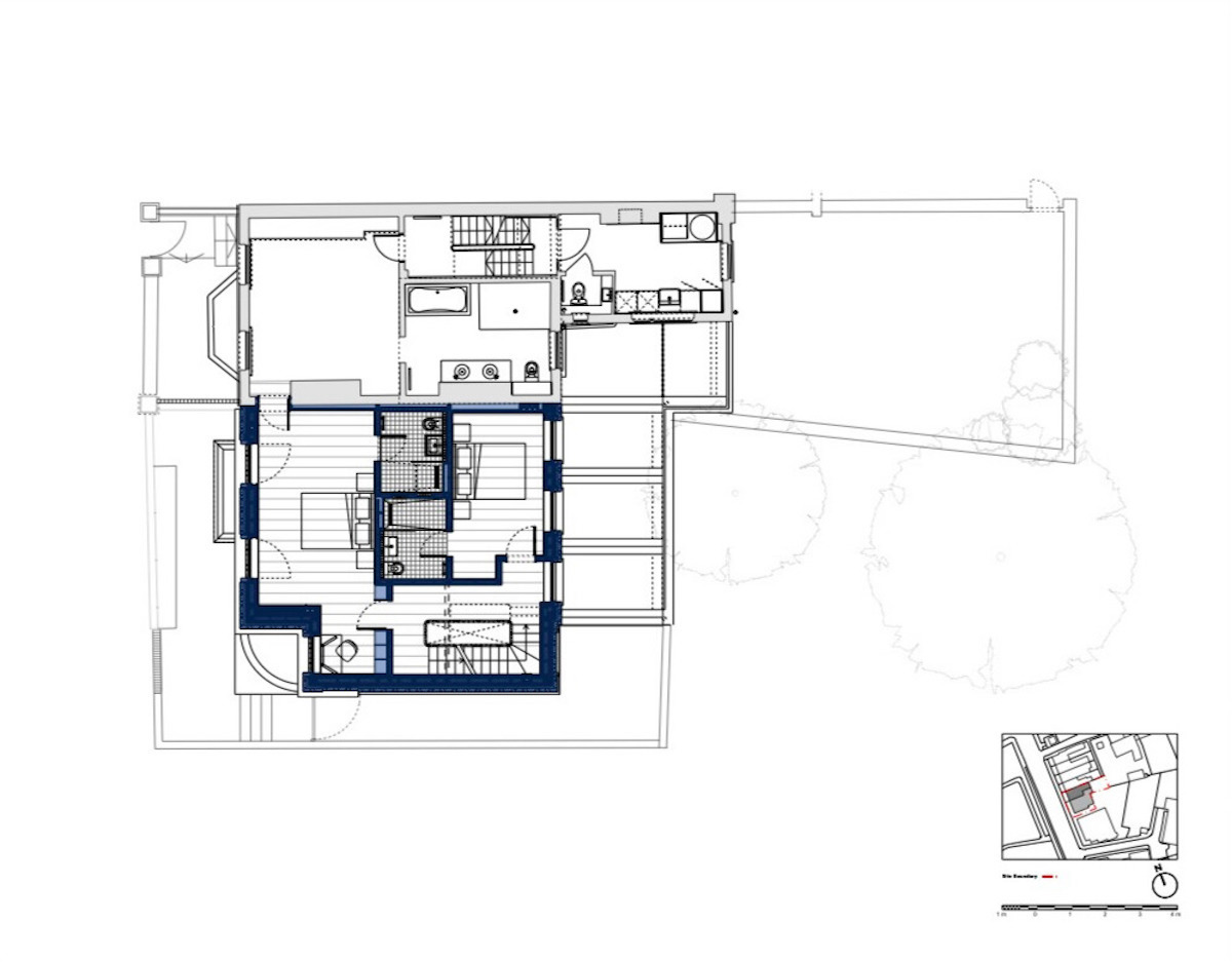
The upper levels are organised to balance shared and private spaces. A generous landing on the first floor functions as an informal lounge, with an internal balcony overlooking the double-height space below. Three children’s bedrooms occupy the third floor, spanning both the original house and the extension, allowing for both connection and separation as needed. The top floor is given over to a principal bedroom suite with access to a private balcony. A curving timber staircase runs through the house, with widening landings and increasing levels of daylight reinforcing the sense of progression through the building.
Externally, the original Victorian façade has been carefully restored, with paint removed, brickwork repointed and the parapet repaired. The extension adopts a lighter yellow brick with two-toned render, establishing a distinct yet complementary identity. On the upper levels, an accordion-like façade modulates the massing and introduces rhythm to the street, allowing the additional volume to sit comfortably within its context. Environmental performance is addressed through a highly insulated envelope and the integration of solar panels, enabling the house to approach carbon neutrality during summer months.
“The West London House crystalises the design ethos of our studio,” commented Giles Heather, Director at Goldstein Heather. “With like-minded clients and an excellent contractor we have been able to realise a house that is at once completely of it’s time and yet perennial. The geometrical forms that articulate the exterior continue through to the interior, where domestic, intimate spaces seamlessly connect with more expansive communal areas, filled with light from both east and west. It’s also now a more practical house, more usable and more connected. We are delighted that we have achieved a unified vision, one shared by everyone involved in the process.”
Credits
Architect
Goldstein Heather
Structure
Float Structures
M&E
IC&T
QS
Metrum Consulting
Main contractor
IC&T
Client
Rowan and Angelina Bamford
Reclaimed London brick
London Brick Co
Lime render
Lime Green
Hempcrete blocks
Hempblock
Interior paint
Bauwerk Colour
Joinery, kitchen
Sebastian Cox






















