Impepinable Studio’s workplace for a seed production company in rural Cuenca, Spain, uses repurposed shipping containers and locally sourced construction methods to create a flexible, light-filled environment that bridges agricultural production and technological innovation.
Impepinable Studio has completed a new office building for Agrosemillas on the outskirts of El Peral, a small agricultural town in Cuenca, Spain. Positioned within an expansive agro-industrial landscape, the project sits alongside a national road that separates it from the settlement and is surrounded by fields and large-scale logistical infrastructure. Here, the rhythms of harvest cycles and production processes define daily life, with periods of intense activity punctuated by quieter intervals.
The brief called for a workplace that could accommodate a broad spectrum of users, from warehouse operatives to engineers engaged in research and development, while providing conditions suited to focused work, meetings and technical collaboration. At the same time, the building needed to maintain a direct relationship with the surrounding industrial complex, aligning itself with the language and materials of the existing warehouses.
The resulting scheme is conceived as an extension of Agrosemillas’ operational infrastructure and a marker of its evolving identity. Historically known for seed production, the company is now shifting towards a model centred on innovation and environmental responsibility. The architecture of its new premises looks to reflect this transition, combining a pragmatic, industrial character with a more open and contemporary expression. The use of the company’s green and yellow corporate colours is unapologetic, applied across façades punctuated by large circular openings fitted with manually operated shutters that regulate light and views.
Constructed alongside more than 4,500 square metres of new production and storage facilities, the office building shares the same construction logic and supply chains. The design deliberately draws on local expertise, engaging craftsmen from El Peral and neighbouring towns, alongside industrial contractors familiar with the region’s building practices, with this reliance on available skills informing the technical resolution and the project’s restrained architectural language.
The building is organised around a clear and repeatable structural system. Four reclaimed shipping containers, opened along their sides, are arranged on a concrete plinth that extends from the adjacent warehouses. Their configuration generates a saw-tooth roof profile, creating a series of north-facing skylights that bring consistent, diffuse daylight deep into the interior, creating a calm and evenly lit working environment, contrasting with the intensity of the surrounding industrial setting.
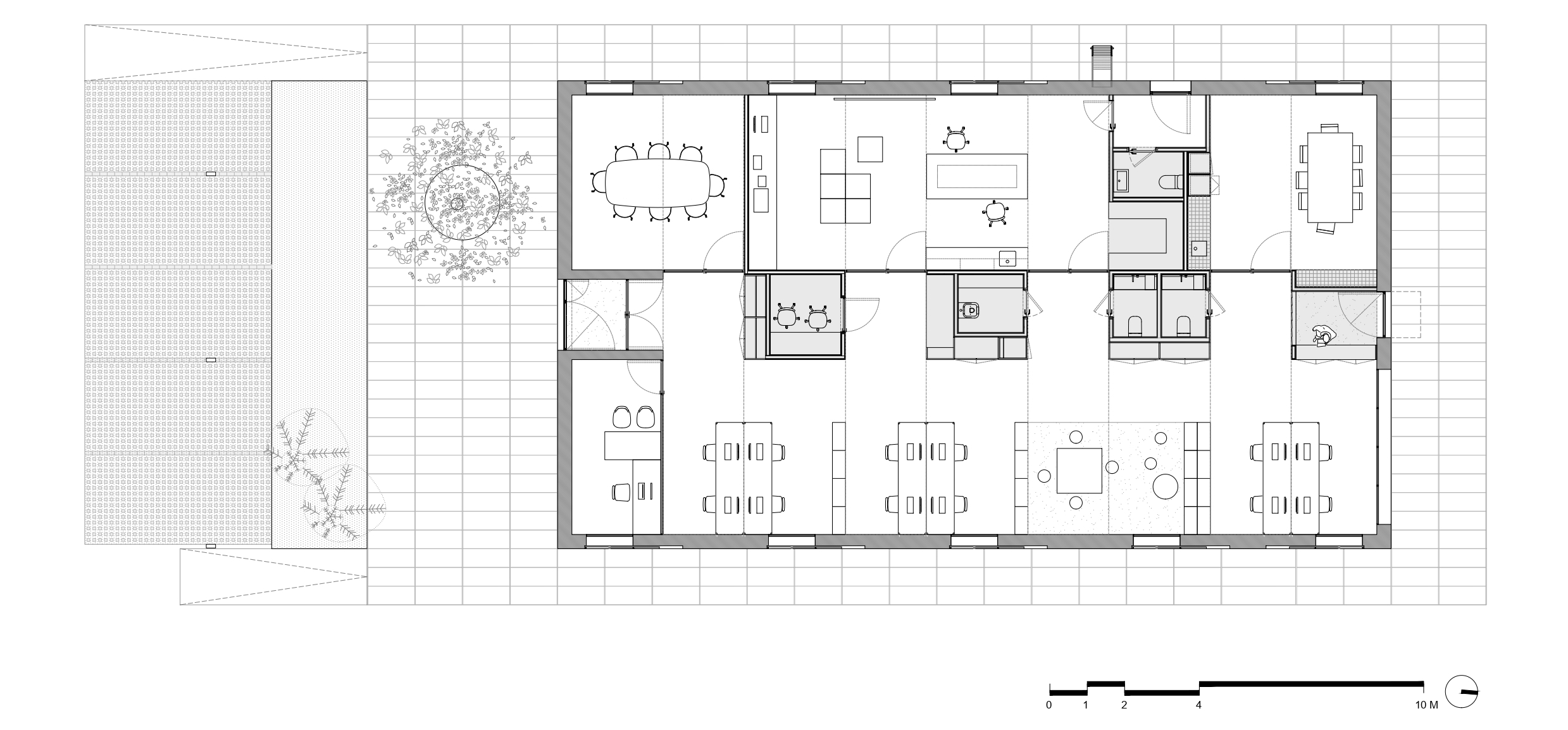
Floor plan.
In plan, the interior is structured by three parallel bands running perpendicular to the containers. These accommodate open-plan work areas, service spaces, and enclosed rooms for meetings and laboratory use. Separate entrances respond to different patterns of movement across the site, allowing the building to operate efficiently within the wider logistics of the complex. Meanwhile above, sections of the roof can be used for experimental crop planting. Alongside the reused containers, the palette includes concrete, steel framing and timber elements, with polished concrete floors and simple interior finishes.
Credits
Client
Agrosemillas
Architect
Impepinable Studio
Structural engineer
gv408
Services engineer
Nortap
Technical architect
Miguel Ruiperez
Contractor
Cresver80
Metalwork
Oscar Remolino
























