Nissen Richards Studio’s transformation of a former dairy farm reinterprets agricultural forms to create a small collection of low-carbon homes on the Kent–East Sussex border.
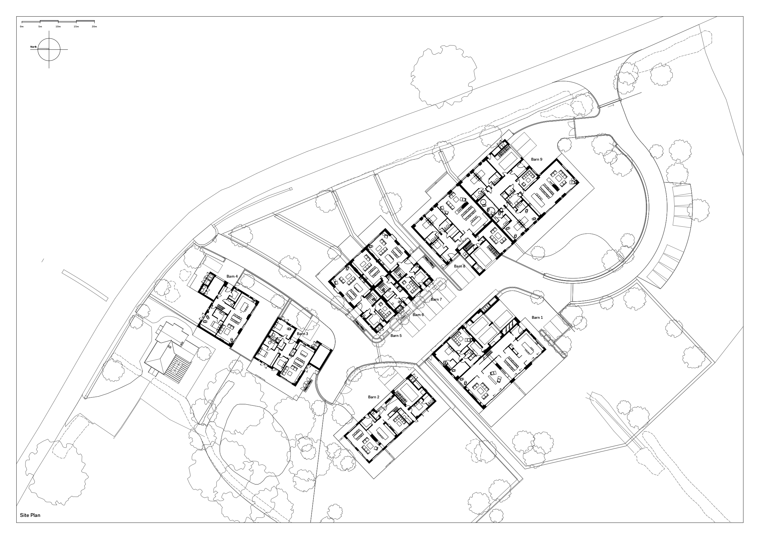
Nissen Richards Studio has completed Hartdene Barns, a development of nine new homes on the site of a former dairy farm within the High Weald Area of Outstanding Natural Beauty. Set across forty acres of gently undulating countryside near Hartfield and Cowden, the scheme replaces a cluster of deteriorating agricultural buildings that had fallen into disrepair following the closure of the farm in 2017.
Rather than erasing the site’s past, the project draws directly from it. Many of the new dwellings follow the footprints and proportions of the former barns, allowing the loose arrangement of buildings around a central yard to be retained. Where smaller, ad-hoc structures once crowded the site, selective demolition has opened long views across the landscape, reinforcing the relationship between buildings and their rural setting.
Site plan.
The scheme was commissioned by Q New Homes, which appointed Nissen Richards Studio to develop an existing planning consent. While the original permission sought to preserve the structural frames of the barns, the revised proposals retained their massing and geometry while reworking the architectural language. Pale timber was replaced with darker, more robust materials, giving the buildings a stronger visual presence and a closer affinity with traditional agricultural forms.
Across the site, the houses adopt distinctive curved and pitched roof profiles, recalling Dutch barns, dairies and hay stores – and together, these silhouettes establish a varied but coherent ensemble. The buildings range from three to six bedrooms, each with its own garden and allotment, and one incorporating a pond formed from a wartime bomb crater, a reminder of the site’s layered history.
This link between old and new is also reinforced through material choices with charred spruce cladding, black standing-seam zinc roofs and dark brickwork sitting comfortably within the wooded landscape. Varied cladding patterns have been used to articulate entrances and break down the scale of larger elevations, while generous areas of glazing have also been positioned to frame long views across fields and forest, with smaller openings facing shared spaces to maintain privacy.
Behind this façade sits an ambitious environmental strategy designed to meet the RIBA Climate Challenge 2025 targets. The homes have been constructed using a lightweight timber-based system, combining structural insulated panels with glulam and steel elements, an approach that reduced embodied carbon while allowing a high level of off-site fabrication. Existing concrete from the former farm was also crushed and reused as hardcore, further lowering material waste.
High levels of insulation and airtightness are complemented by air source heat pumps, mechanical ventilation with heat recovery, and photovoltaic panels, with these contributing to a carbon-net-zero outcome in use, supported by a whole-life carbon assessment carried out as a condition of funding.
Inside, light-filled spaces are organised around double-height volumes and vaulted ceilings that express the forms of the original barns. Full-height glazed doors connect entrance halls with living spaces, while staircases – some solid, some appearing to float – reflect the varied layouts of each dwelling.
Within the surrounding site, new planting has been added, using native species to support local habitats. Allotments and gardens extend the agricultural legacy of the site, offering residents a direct relationship with the land they inhabit.
“This has very much been a design-led development and it’s been a huge pleasure to work on – as well as huge learning curve for everyone involved’ Jim Richards, director of Nissen Richards Studio commented. ‘Working with distinctive forms and silhouettes, meeting challenging sustainability targets, whilst providing generous and inspiring internal spaces that capture views of the surrounding landscape has been a delicate high-wire act, but the final buildings are all we hoped for. They have a sense of place and a notable link to the past, but the modern incarnations of these former agricultural buildings are also built to the highest specification to provide buyers with luxury, low-carbon homes.”
Damien Wynne, director at Q New Homes, meanwhile added: “The dwellings all have their own special architectural moments that set them apart from the norm and demonstrate our attention to detail and our willingness to embrace design excellence, with support from our long-standing relationship with Nissen Richards Studio.’
Credits
Client and Main contractor
Q New Homes
Architect
Nissen Richards Studio
Structural engineer
Jonathan Darnell Engineering
Civil engineer
Bellamy Wallace Partnership (BWP)
SIP structure
Paramount Structures
SIP manufacturer
SIPs Eco
M&E engineer
Integration
Whole-life carbon assessor
Darren Evans



























