Mimosa Architects’ mountain cottage in the Krkonoše village of Strážné reinterprets the spatial principles and material character of traditional alpine dwellings, creating a contemporary family retreat rooted in the landscape and craft traditions of the region.
On a hillside above the mountain village of Strážné in the Krkonoše Mountains, Prague studio Mimosa Architects has completed the reconstruction of a private cottage that re-establishes the presence of a traditional alpine dwelling on the site. The new building replaces a heavily altered timber log house whose original character had been obscured over decades by ad hoc additions, poor repairs and layers of artificial cladding introduced during the era of mass recreation.
Although the project began as a refurbishment, the remaining fabric of the cottage proved to be in poor technical condition and offered little that could be meaningfully preserved. Rather than attempting a literal restoration, the architects set out to recover the underlying spirit of the original house – drawing on the spatial principles, proportions and material logic that define historic buildings in the Krkonoše landscape.
Mountain architecture in this region is characterised by steep, sheltering roofs designed to withstand long winters and heavy snowfall. Hayloft dormers, boarded gables and stone plinths sit above low timber structures arranged according to a traditional tripartite plan. Mimosa Architects used these elements as the starting point for a contemporary interpretation, shaping a cottage that feels embedded in the local building culture without resorting to decorative historicism.
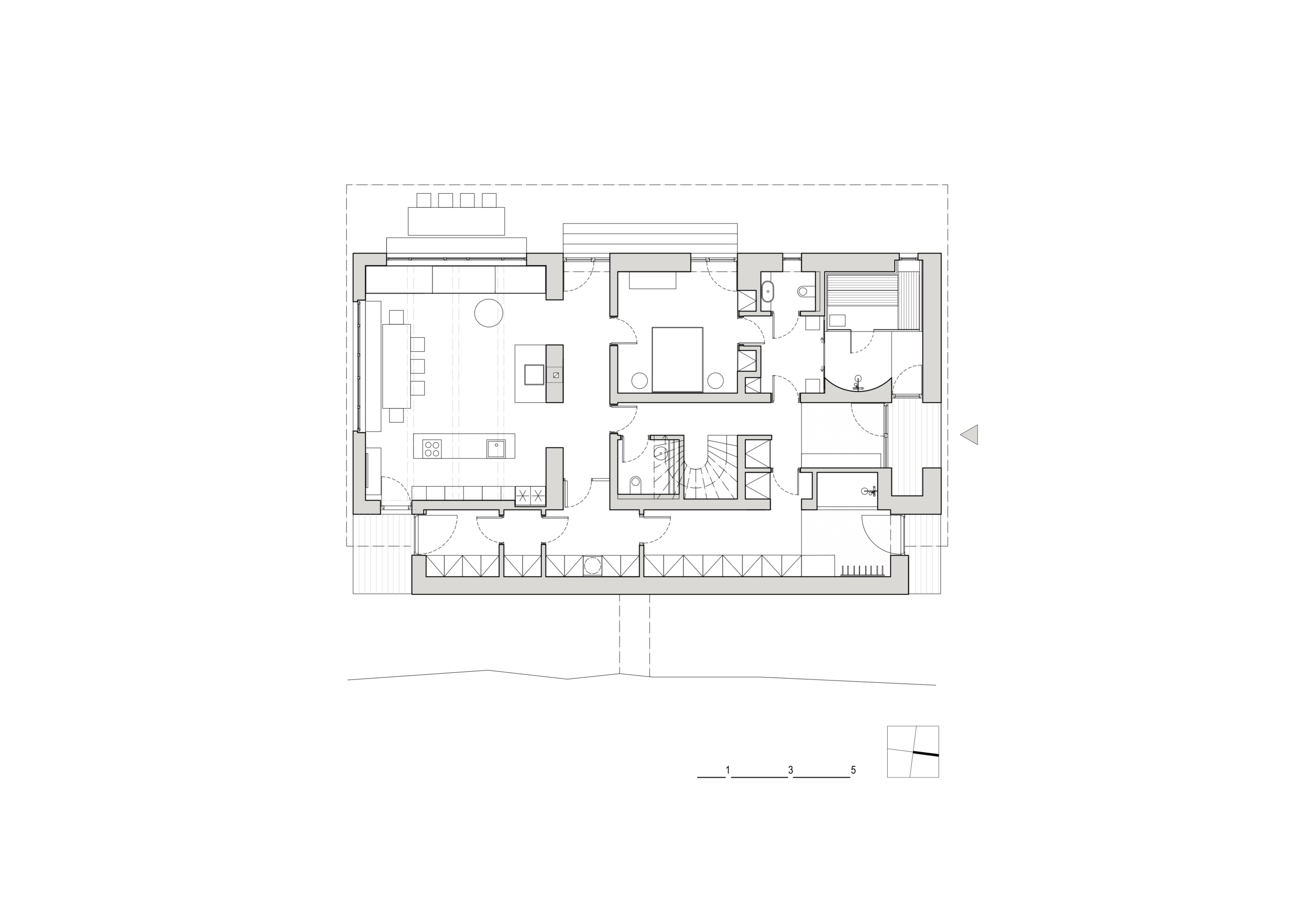
The project avoids imposing modern spatial concepts onto a traditional envelope, with the architects instead allowing the surviving fragment of the original structure – an exposed beam ceiling – to determine the proportions of the principal interior spaces. The height and scale of the main living room, and by extension the rest of the house, were derived from this element, helping to preserve the intimate and protective atmosphere typical of historic mountain interiors.
Large areas of operable and frameless glazing introduce contemporary openness while maintaining the rhythm of the traditional structural frame. From the outside, the building reads as a compact timber cottage beneath a steep roof; inside, views extend out across the surrounding mountain landscape.
Stone is used for the plinth and external paving, while metal and sheet metal elements provide detailing for railings, roofing and façade components.
The ground floor is organised around the main living room, conceived as the social heart of the house. Built-in seating lines the windows while a large dining table ties the space together, creating a gathering place for family and friends. Within the footprint of the original building, Mimosa also inserted a guest bedroom and a staircase. A cluster of small service rooms added during the socialist period has been reworked to accommodate a sauna and associated facilities.


Timber forms the primary construction and finishing material throughout the building – used for the façade, roof structure, floors, interior wall cladding, windows, doors and bespoke joinery.
Between the hillside and the historic volume of the cottage, the architects also introduced a secondary zone containing the practical spaces required for mountain living. This includes a pantry, laundry room, plant room, workshop and storage for skiing and cycling equipment, along with a combined washroom designed to serve both bicycles and dogs returning from the outdoors.
Above, the attic level follows the character of traditional loft interiors. The spaces are open and generous beneath the steep roof while still providing privacy for individual family members. Bedrooms located in the gable ends frame views across the ridges of the Krkonoše Mountains.
The building’s services were designed with the realities of its remote location in mind. Rather than pursuing demonstrative technological self-sufficiency, Mimosa opted for simple and robust systems intended to operate quietly within the landscape. The cottage remains connected to the electrical grid, while heating and domestic hot water are supplied by a ground-source heat pump linked to a geothermal borehole. Water is drawn from a nearby spring, and wastewater is treated through an on-site treatment plant.
Credits
Architect
Mimosa Architects
Wood flooring and wooden wall cladding material
Oakcent
Cladding and tiles
Archtiles
Joinery
Brick
Interior wall cladding and doors
AM Interior
Metalwork
Kurel
Light supplier
Bulb
Windows
Janošík Okna-Dveře
Wellness
Aquamarine Spa
























