An extraordinary museum and community centre in Romania’s Danube Delta locks into the sustainable networks of one of Europe’s last great wildernesses to support the culture and the future of the Lipovan people.
Romania’s Ivan Patzaichin Museum and Community Innovation Centre celebrates the life and achievements of Ivan Patzaichin (1949–2021), one of the greatest Olympic athletes of all time, and provides a framework for showcasing his passionate concern for the fragile biodiversity of the Danube Delta, and the local culture and traditions of the Lipovan people.
The Danube Delta covers an area of over 4,000 square kilometres and is one of Europe’s last great wildernesses. It’s a mysterious place of marshes, lagoons, dunes and reed beds through which a complex series of channels weave. Parts of these extensive wetlands are below sea level and the average height across the region is less than a metre. A UNESCO World Heritage Site, it is a rich spawning ground for fish and aquatic animals, an important habitat for birds including herons, pelicans, ducks and geese, as well as a habitat for otters, mink, hare and wild boar.
With an average population density of two people per square kilometre, the Danube Delta is one of the least inhabited regions of temperate Europe. Outside the towns of Sulina and Tulcea most of the population live in villages that are accessed solely by water transport. Its isolation made the Danube Delta a place of emigration, transit and sanctuary for people from around the region, including the Lipovans, descendants of the Orthodox Old Rite followers who fled from religious persecution in Russia during the 18th century.
Eco-tourism project Rowmania aims to promote the unique ecology and cultural heritage of the Danube Delta. A UNESCO World Heritage Site, the delta is a rich spawning ground for fish and aquatic animals, and an important habitat for birds, including herons, pelicans, ducks and geese, and mammals, such as otters, mink, hare, and wild boar.
Ivan Patzaichin was born into a Russian Lipovan family in the village Mila 23. His father, Vicol, was a fisherman, and his mother, Alexandra, was a dressmaker. He took up canoeing at an early age and decided to pursue a canoeing career after watching a television broadcast of two canoers from his village winning the 1966 world title in doubles. Patzaichin in many ways resembled the schoolboy comic book hero; a modest man of humble origins, with prodigious natural talent, but who never lost sight of his cultural roots. He took part in major competitions between 1968 and 1984, including five consecutive Olympics, and won seven Olympic and 22 world championship medals, including four Olympic golds. He later worked as a canoeing coach, attending five more Olympics in this capacity and was awarded the Olympic Order in 1990.
After his competitive career he met the architect and entrepreneur Teodor Frolu. Together, they founded Rowmania, an eco-tourism project that aims to promote the unique ecology and cultural heritage of the Delta. Rowmania has worked with local people to develop canoeing trips and homestays and to help establish a network of local restaurants that specialise in the unique cuisine of the area. Rowmania has revived local craft and construction skills, including traditional boat building, and has developed a clothing brand. All their products are made from natural materials, are sourced from the Delta, and bring employment into the area helping to support the local communities.
The Russian Lipovan canoer Ivan Patzaichin in 1968, at the start of his career. He went on to win seven Olympic and 22 world championship medals, including four Olympic golds.
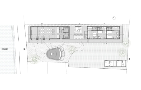
The Ivan Patzaichin Museum and Community Innovation Centre is more than a memorial to Patzaichin’s sporting achievements. It is a celebration of the ecology of the Delta and his passion for the relationship between humans and their environment. Four distinct buildings make up the museum: an observatory-museum, a cultural centre, a small administrative and accommodation complex, and a pontoon-landing area. A nearby household operates a Local Gastronomy Point, offering traditional fish-based meals to visitors. The centrepiece is the observation tower that houses the museum.
Designed to be an integral part of its natural and cultural environment, the brief for the project was developed by Teodor Frolu and was derived from the ecology of the Delta and the principles of sustainable tourism. The main complex is built with locally-sourced, traditional building materials and local skilled labour. The museum is a detached five-storey tower constructed out of wood, the top of which is an observation platform that offers panoramic views over the surrounding Delta. The building serves as a landmark and ingeniously illustrates how natural materials traditionally used in construction, such as wood, reed, clay, and hemp, can be reinterpreted and integrated into a modern concept.
Apart from the timber structure of the tower, the complex was constructed from local wood, hemp and reeds, and was designed to be built by the local community, using traditional skills and techniques.
The 18-metre high tower is one of the tallest structures on the whole Delta. Built from a steel structure supporting wood and hemp, its design is redolent of a traditional wooden boat, the defining symbol of Patzaichin’s life. The tower serves a dual function: as a memorial space that records and reflects key moments from his life and career, and as a focal point for observing the surrounding natural environment of Mila 23 – Patzaichin’s home town. A vertical marker in the Delta’s skyline, it stands out, not as an act of domination, but as a harmonious gesture that signals the living culture of the Delta and points to a sustainable and prosperous future.
Patzaichin’s story unfolds across all levels of the tower, creating a cyclical path that begins and ends at the same key point: the Danube Delta. The tower’s six distinct levels invite visitors to discover, through multi-media exhibitions, fragments of the chronology of Patzaichin’s life – from childhood, through his athletic career, coaching, and later as a social entrepreneur and conservationist. At the base is ‘the treasury’, a display of Patzaichin’s distinctions, medals and awards. The vertical timber structure frames a spiral staircase whose core space houses his racing canoes and the traditional wooden canoes of the local area. The top floor terrace offers a unique panorama of the surrounding nature of Mila 23.
The tower’s central structure was prefabricated at a factory in Târgoviște, 100 kilometres from the site.
A key part of the brief was that the museum should not be an enclosed space – Ivan Patzaichin lived his life outdoors, on the water and in harmony with his environment. The vertical wooden supports are angled to protect the museum from the elements but the spaces between them are open allowing the winds and the water-heavy air of the Delta to become part of the visitor experience. This is a porous building that, much like the Lipovan people, is at one with its surroundings. The visitor is thus immersed in the landscape, weather, sounds and atmospheres of the Delta. An immersive experience that changes with the seasons, it is unlike any other museum.
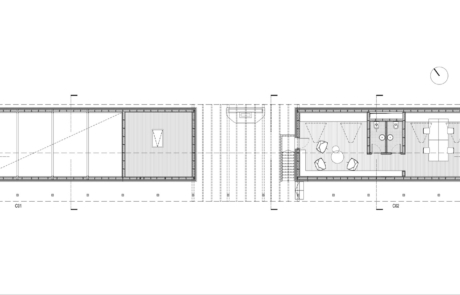
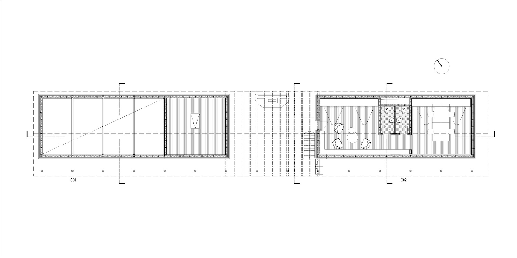
The observation tower is a strong architectural statement, but the use of engineered timber and the reference to traditional boat building forms allow it to blend with the more traditional buildings of the hotel, restaurant and innovation centre, which are conceived as a reworking of the local vernacular. The effect is that the whole complex grows out of the landscape.
The tower’s central structure – along with two 30-tonne cranes required to lift it into place – was floated on barges along the Danube to the site. A temporary landing stage was erected for the construction phase.
The resource centre and hostel accommodation are housed within a single timber-frame structure and incorporate parts of the Patzaichin family home along with some of its artefacts. Apart from the sustainable engineered wooden structure, the rest of the complex is sourced from local wood, hemp and reeds, and was designed to be built entirely by the local community, using their traditional skills and techniques. The result is a set of clean and simple spaces that includes a central open portico. The Pavilion offers space for various cultural, artistic, educational, and community-led activities, functioning both as a social hub for the local community and as infrastructure supporting its initiatives. It demonstrates how the reactivation of local history, community practices, cultural knowledge and biodiversity, together with the contemporary reinterpretation of traditions, can form replicable pillars of sustainability in areas with natural potential. The gastronomy area is one of a network of local gastronomic points across the Delta that has led to a revival of local fisheries and horticulture – a central theme of the wider project.
The complex serves as a base for a wide range of cultural, artistic, educational and community-led activites including culinary demonstrations (photograph by Mihai Barbu) and rock concerts (photograph by Andreea Dorobat).
The very isolation of the site posed significant construction challenges. The main tower was prefabricated by Glulam, a hundred kilometres away in Târgoviște, and its central structure was transported by road before being floated on barges along the Danube to the site and unloaded onto a temporary landing wharf. The two 30-tonne cranes required to lift it into position also had to be transported by barge.
The foundations were poured in March 2023. The prefabrication strategy not only reduced on-site work but also allowed for precise control over the structural elements and finishes, ensuring the tower’s stability and aesthetic integrity. Despite the challenges posed by the remote, water-bound site, the tower was lifted into position and completed within a six-week period, with the whole project taking a little over a year to complete, opening in April 2024. The entire construction budget was less than €1m.
While this is a remarkable set of buildings, they are a lot more than the sum of their parts. In marrying the museum with its environmental and cultural context this is an exemplar of how architecture can contribute to our understanding of one of the most fragile places in Europe and its distinctive culture. Many projects claim to be ‘eco-friendly’, sustainable or carbon neutral. Few stand up to serious scrutiny. The Museul Ivan Patzaichin is part of a living web of sustainable networks that will contribute income and employment to this isolated community for generations to come.
View of the surrounding landscape from the top floor terrace of the tower and from the distinctive ‘nest’.
Drawings
Credits
Client
Ivan Patzaichin-Mila 23 Association
Architects
Teodor Victor Frolu, Skaarhitects
Structural engineer
Creative Engineering
Graphics and wayfinding
Studio MUTT
General contractor
Terra Construct
Wood structure
GLULAM
Hemp system
HEMP NZEB
Heritage consultant
ASTRA National Museum Complex
Landscape design
Nicolas Triboi
Project manager
Bogdan Mihalcea
Graphics
Studio Shentzu
Financial manager
Dan Cârjan
Museum documentation
Oana Costinaș, Alina Jantea, Raluca Munteanu
Exhibition production and design
Kaustik


















