Ian Chalk Architects has refurbished Cambridge’s historic Arts Theatre, renewing the venue’s auditorium and backstage areas, balancing technical upgrade with the preservation of intimacy, craftsmanship and acoustic performance.
Ian Chalk Architects (ICA) has completed a nine-month refurbishment of The Arts Theatre Cambridge, marking the first phase of a wider strategy to secure the long-term future of the historic venue. Located in the centre of the city, close to King’s College, the project focuses on the renewal of the main auditorium alongside upgrades to the stage house, front of house and backstage facilities.
Founded in 1936 through the vision of economist John Maynard Keynes, and originally designed by George Kennedy, the theatre has long played a central role in the cultural life of Cambridge and the wider region. Over the decades it has undergone a series of alterations, including a substantial rebuild in the early 1990s that retained only the brick envelope and balcony structure. The latest intervention builds on this layered history, aiming to retain the character of the space while addressing the demands of contemporary performance.
The theatre before work began.
ICA’s brief focused on improving the technical performance, comfort and accessibility of the auditorium without compromising its established qualities. Working with theatre consultant Charcoalblue, the design team reconfigured seating, sightlines and circulation to bring the audience closer together. The removal of central aisles and re-raking of the floor improves visibility, while new tiers and handrails at balcony level enhance accessibility. Sound and light lock lobbies reduce noise transfer, enabling greater flexibility in programming.
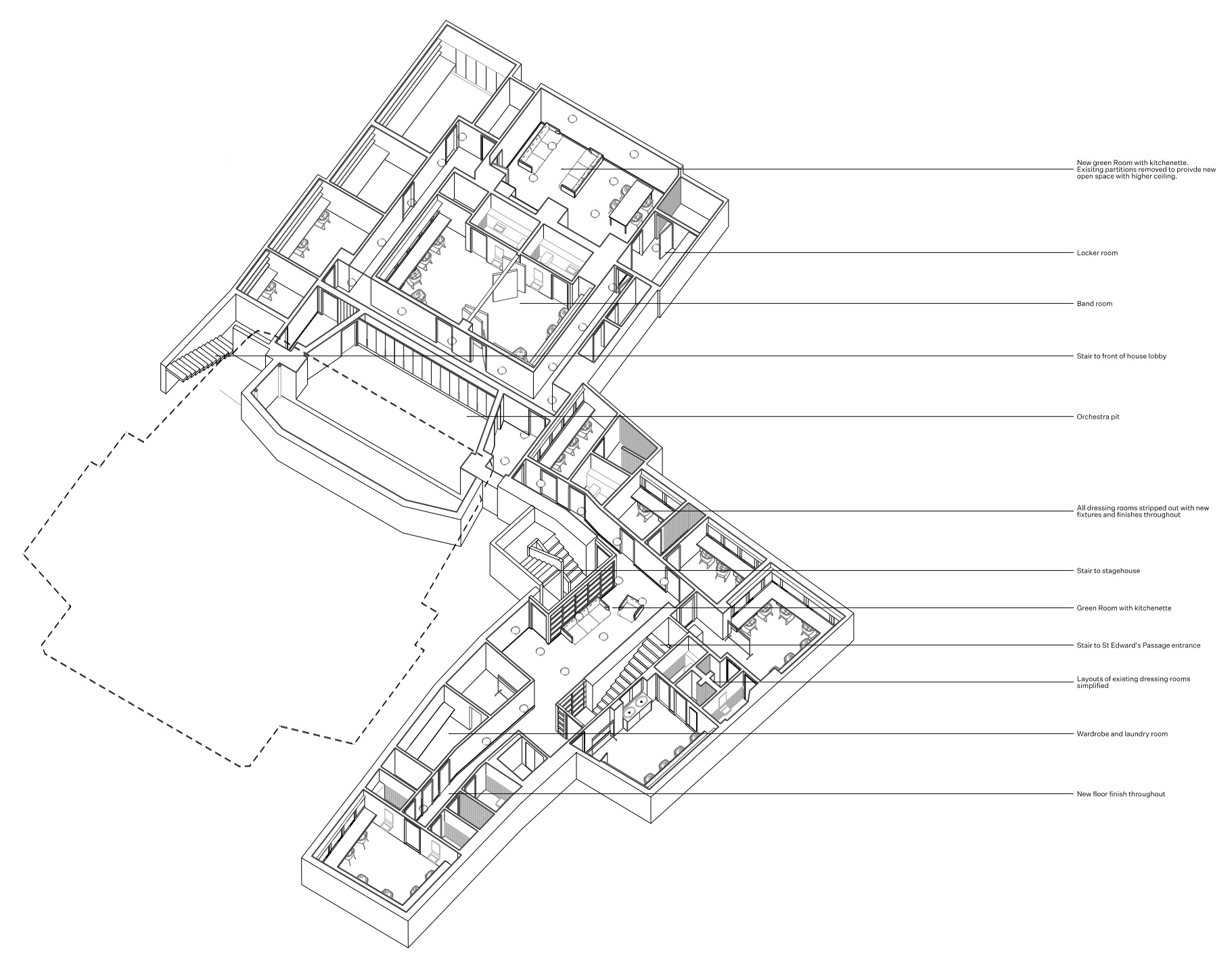
Above: Site plan. Below: Section as well as planar and sectional cutaways.
Architecturally, the intervention is defined by a softening of the auditorium’s geometry. Rounded corners and a new curving balcony front replace more angular forms, while the interior is lined in carefully crafted maple timber panelling. Doing so recalls the original 1930s birds-eye maple finish, while its geometry has been refined to support acoustic clarity.
Beyond the auditorium, the project extends to a comprehensive reworking of front and back of house areas. A reinstated entrance on Peas Hill strengthens the building’s presence within the city, while front of house restrooms have been reconfigured to improve capacity and comfort. Backstage, basement corridors have been rationalised and dressing rooms refurbished with new finishes and lighting. Materials including oak, plywood and marmoleum introduce a domestic character, creating a calm and functional environment for performers and crew.
In terms of improving the building’s performance, the introduction of an air-source heat pump and the reuse of existing ductwork reduce operational and embodied carbon, while responsibly sourced timber has been used throughout. Redundant seating has been carefully removed and repurposed elsewhere, extending the lifecycle of existing components.
As the first stage of a longer-term programme, the refurbishment establishes a foundation for future development. A second phase, currently planned for 2026, will introduce a new rooftop studio theatre, enabling concurrent programming and expanding the venue’s cultural and educational offer. Conceived as a hybrid CLT and steel structure, the addition will extend the theatre’s reach while reinforcing its original ambition to serve both the city and the university community.
“From the early stages, ICA showed us imaginative ways a tired and impractical theatre could be revived,” said Lady Susie Sainsbury of The Gatsby Foundation, who funded Phase 1 of the project. “Echoes of the 1936 theatre remain, as they have skilfully reimagined the auditorium with exceptional craftsmanship as a sophisticated and welcoming home for the future of theatre in Cambridge.”
“ICA have delivered a meticulous and passionate transformation which exceeded our brief, driven by an unwavering commitment to excellence, craftsmanship and a kindness we hadn’t anticipated,” added Rachel Tackley, The Arts Theatre Interim creative director and co-chief executive. “Their designs have preserved everything our audiences love, while ensuring the auditorium will be enjoyed by generations to come. We could not be prouder.”
Credits
Client
The Arts Theatre Trust
Architect
Ian Chalk Architects
Project director
Harper Tackley
Project manager
Savills
Quantity surveyor
Aecom
Theatre consultant
Charcoalblue
Services engineer
Buro Happold
Structural engineer
Buro Happold
Heritage consultant
Alan Baxter
Approved inspector
Sweco























